Zala megye, Zalaegerszeg


 

Ingatlan adatai

Irányár: 189 000 000 Ft
Típus: kereskedelmi/ipari ingatlan
Kategória: eladó
Alapterület: 605 m2
Fűtés: -
Állapota: -
Szobák száma: -
Építés éve: 1970
Szintek száma: -
Telekterület: -
Kert mérete: -
Erkély mérete: -
Felszereltség: -
Parkolás: -
Kilátás: -
Egyéb extrák:  
-

Részletes leírás

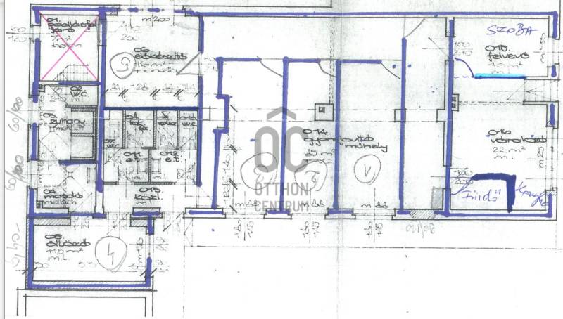
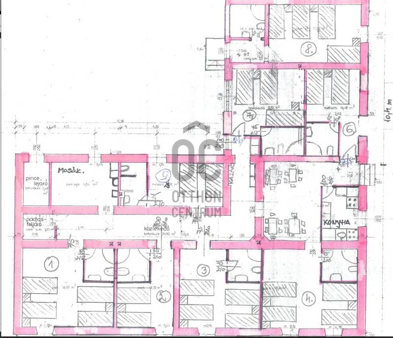
BEFEKTETŐK, VÁLLALKOZÓK FIGYELEM!RENDKÍVÜLI lehetőség ZALAEGERSZEG Belvárosában!Ha vállalkozásban, vagy befektetésben gondolkodik itt az alkalom, ne maradjon le róla!A belváros szívében 769 nm-es saját, zárt területen kínálom eladásra ezt a kettő különálló épület együttest. A nagyobb építmény 340 nm, a kisebb 250 nm-es, melyek téglaépítésűek. A tulajdoni lap szerint kivett szolgáltatóházként szerepel, mely jelenleg bérleményként funkcionál. Számos lehetőséget rejt magában, aki hosszú távon szeretne előre látni.A nagyobb épület teljes körű felújítása 2020-ban megtörtént, a másik épületben jelenleg is felújítási munkálatok folynak.Belső tereiben összesen 12 egész+ 2 félszoba került kialakításra, ezen kívül közösségi helyiség, konyha, tusolók, mellékhelyiségek, közös étkezők találhatók benne. A belső udvaron tároló helyiség is kialakításra került.Az ingatlan teljes közművekkel rendelkezik, a fűtést gázcirkó kazán biztosítja. Nyílászárók vegyesek (műanyag, fa).Az épület településközpont övezeti besorolásba tartozik (Vt-10), mely bővítés szempontjából 6,0-10,5m épületmagasság engedélyezett!Amennyiben a képek alapján elnyertet tetszését, hívjon bizalommal és megtekintésre időpontot egyeztetünk! További kérdésekre szívesen válaszolok!Nézzük meg együtt és tegyen rá árajánlatot!

 Hirdető adatai

Hirdető neve: Otthon Centrum
Kapcsolattartó: Pölhösné Csilla
Hirdető telefonszáma: +36 70 716 8481
Honlap: -