Pest megye, Sóskút


 

Ingatlan adatai

Irányár: 129 000 000 Ft
Típus: ház
Kategória: eladó
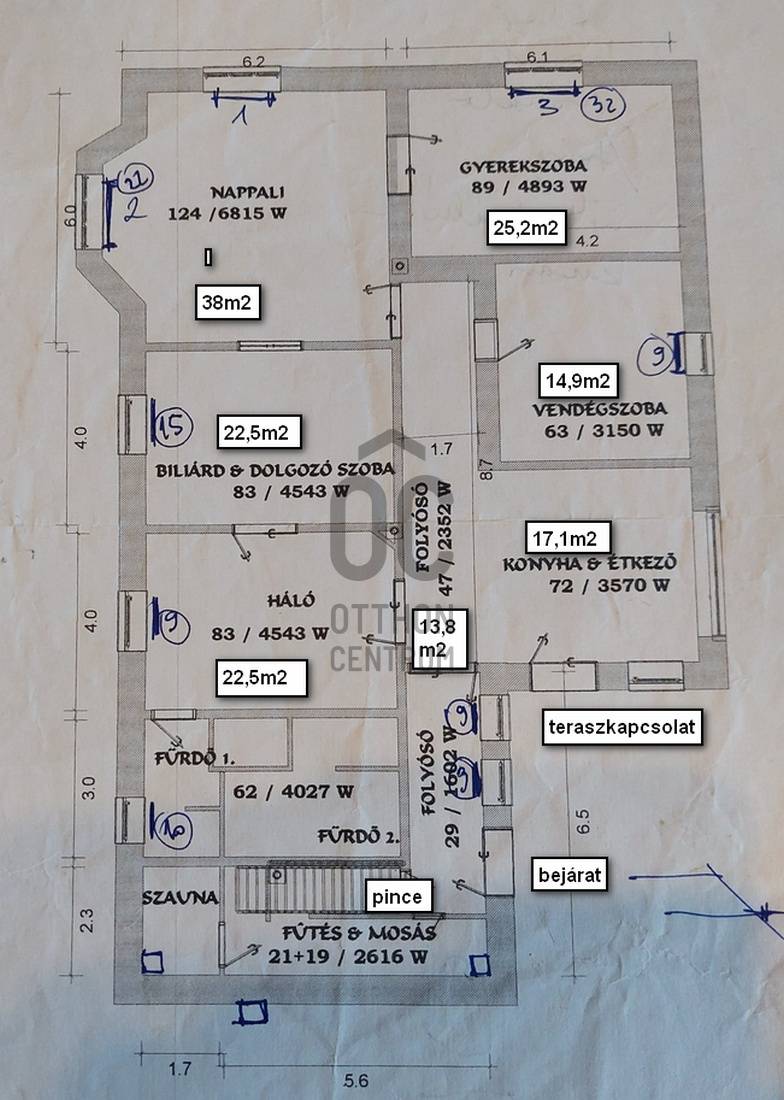
Alapterület: 210 m2
Fűtés: egyéb
Állapota: felújítást igényel
Szobák száma: 5
Építés éve: -
Szintek száma: -
Telekterület: 1 208 m2
Kert mérete: 1 208 m2
Erkély mérete: 20 m2
Felszereltség: -
Parkolás: -
Kilátás: -
Egyéb extrák:  
-

Részletes leírás

Megvételre kínáljuk Sóskút centrumában 1900-as években ,helyi sóskúti kőből épült 210m2- es lakóépületet ,hozzátartozó 1208m2-es telekkel, ,60m2-es pincével, és egy 40m2-es külön álló lakhatásra is alkalmas építménnyel.Az épületek 60 cm falazattal készültek. Részben elkezdődött a felújítás, jelenleg is lakható, de a további korszerűsítések szükségesek.A telek összközműves, kőrbe kerítve épített kő falazattal és egy kővel kiépített ásott kút is készült, továbbá a telek földhivatalilag ketté osztható.Az épületben nagy tágas terek,eredeti belső nyílászárók,kandalló találhatóJelenleg a fűtését vegyes-tüzelésű kazán biztosítja.Az épület kiváló lehet lakásnak, közintézménynek, vendéglátó egységnek, különböző szolgáltató egységnek,stb.Ha felkeltette figyelmét és kérdése van , hívjon bizalommal .

 Hirdető adatai

Hirdető neve: Otthon Centrum
Kapcsolattartó: Lantos János
Hirdető telefonszáma: +36 70 461 9681
Honlap: -