Pest megye, Pilisvörösvár


 

Ingatlan adatai

Irányár: 96 590 000 Ft
Típus: lakás (újépítésű)
Kategória: eladó
Alapterület: 75 m2
Fűtés: -
Állapota: új
Szobák száma: 4
Építés éve: 2024
Szintek száma: -
Telekterület: -
Kert mérete: -
Erkély mérete: -
Felszereltség: -
Parkolás: -
Kilátás: utcai
Egyéb extrák:  
-

Részletes leírás

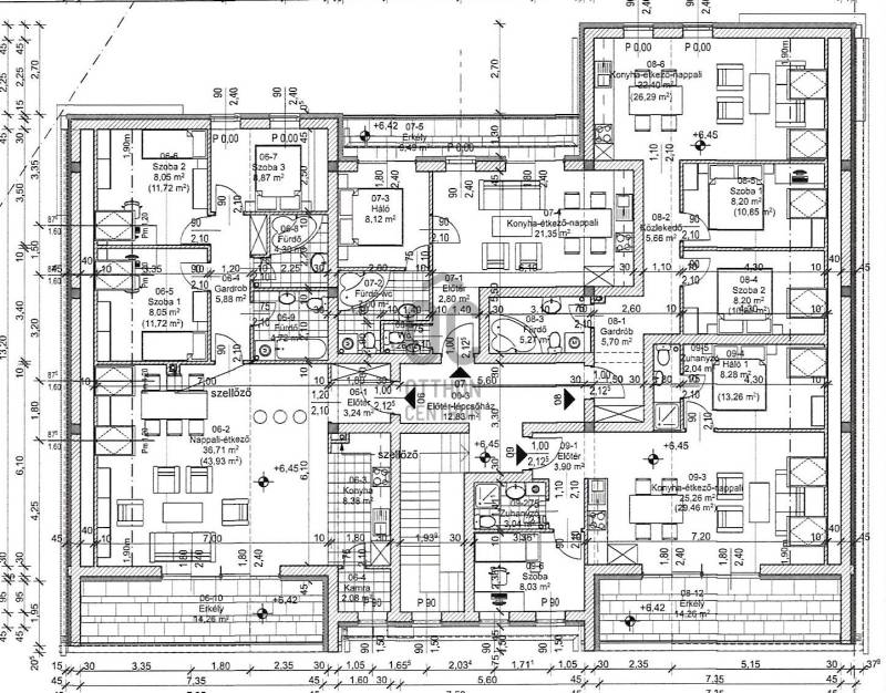
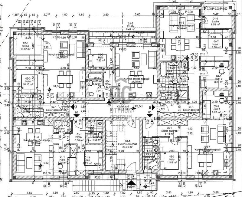
Kivételes lehetőség, hogy egy új, kiváló állapotban lévő lakást vásároljon a Pest megyei Pilisvörösváron, az Attila utcában. Az ingatlan alapterülete 74.77 nm, és 4 szobával és 2 fürdőszobával rendelkezik. A fűtést hőszivattyús fűtés biztosítja, mely környezetbarát és gazdaságos megoldás. Az ingatlan környéke kiváló adottságokkal rendelkezik, és a közlekedési lehetőségek is kitűnőek. A környék csendes és biztonságos, ideális családok számára. A közelben találhatók boltok, iskolák és óvodák, valamint számos sport- és szabadidős lehetőség is. Ha kérdése lenne az ingatlannal kapcsolatban, bátran keressen minket, és szívesen segítünk. Várjuk érdeklődését!Projekt bemutatása9 LAKÁSOS TÁRSASHÁZI HÁZ ÉPÜL PILISVÖRÖSVÁR SZÍVÉBEN 2024-BEN Pilisvörösvár szívében társasházi lakás leköthető. 2024 negyedik negyedév végi átadással.Pilisvörösvár Attila utcában kerül megépítésre ez a modern gondolatokkal teli, 9 lakásos, háromszintes társasház.Az utca fronti szinten üzlethelyiségelső emeleten 5 db lakás került kialakításra, a tetőtéri szinten 4 lakászárt lépcsőház A lakások jól átgondolt elrendezésű tervek alapján magas minőségben kerülnek megépítésre.A lakások méretei különbözőek. (38- 71-75 nm közötti )Néhány tetőtéri lakáshoz erkély is lett tervezve.Világos, lakások.hőszivattyús fűtés, padlófűtéssel.Korszerű, műanyag ablakok14 cm szigetelés.Minden lakáshoz egy autóbeálló tartozik telken belül.Átadás: 2024. negyedik negyedévMegközelítése tömeg közlekedéssel, autóval is kiváló. ( vasútállomás, busz megálló 2 perc sétával) Iskola, óvoda, bevásárlási lehetőség, egészség központ 100-400 méteres távolságban elérhető.Ajánlom befektetőknek és olyan lakás keresőknek, akiknek fontos, hogy a lakás központi helyen legyen.

 Hirdető adatai

Hirdető neve: Otthon Centrum
Kapcsolattartó: Soproni Brigitta
Hirdető telefonszáma: +36 70 716 8491
Honlap: -