Borsod-Abaúj-Zemplén megye, Miskolc


 

Ingatlan adatai

Irányár: 309 000 Ft/hó
Típus: iroda
Kategória: kiadó
Alapterület: 130 m2
Fűtés: -
Állapota: -
Szobák száma: -
Építés éve: -
Szintek száma: -
Telekterület: -
Kert mérete: -
Erkély mérete: -
Felszereltség: -
Parkolás: -
Kilátás: -
Egyéb extrák:  
-

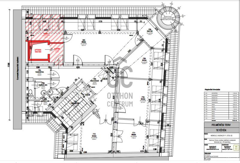
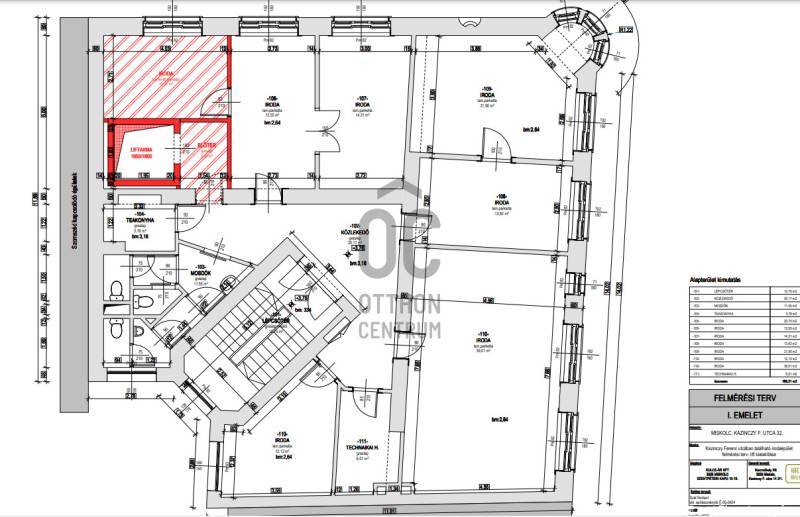
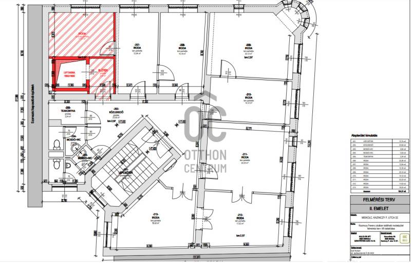
Részletes leírás

Miskolc BELVÁROSÁBAN – frekventált környezetben - KIADÓ egy 3 szintes, felújított, jó állapotban lévő irodaház különböző méretű iroda helyiségei.Az irodaház jellemzői:- KIVÁLÓ LOKÁCIÓ- jó megközelítés- felújított helyiségek- légkondicionált irodák- laminált parkettás és padlószőnyeges burkolatok, festett falak- minden szinten külön vizesblokk és beépített, modern teakonyha - hőszigetelt fa ablakok- eredeti, polgári jellegű beltéri fa ajtók- tágas lépcsőház- 2024-ben beépített LIFT, ami a pinceszinttől a tetőtérig működik- fizetős, zöld zónás belvárosi parkoló udvar az épület mögöttAz irodaház első emelete teljesen egészében kiadó, de a második emeleten és a tetőtérben is vannak még szabadon lévő, különböző méretű irodák. Igény esetén az irodák közötti válaszfalak átalakíthatók. Két havi kaució szükséges!Belvároson belüli elhelyezkedése ideális, buszmegállók 100 m-en belül találhatók.jelenlegi bérleti díjak: 1.emelet: 5 Euro+Áfa+rezsi/hó (csak egyben kiadó)2.emelet: 6 Euro+Áfa+rezsi/hótetőtér: 6 Euro+Áfa+rezsi/hóAmennyiben érdekli valamelyik iroda, kérem hívjon, egyeztessünk és nézzük meg együtt!Miskolc, kiadó, ingatlan, üzlet, iroda, bérlet, belváros

 Hirdető adatai

Hirdető neve: Otthon Centrum
Kapcsolattartó: Damjanovics Rita
Hirdető telefonszáma: +36 70 388 5561
Honlap: -