Somogy megye, Siófok


 

Ingatlan adatai

Irányár: 84 900 000 Ft
Típus: lakás (újépítésű)
Kategória: eladó
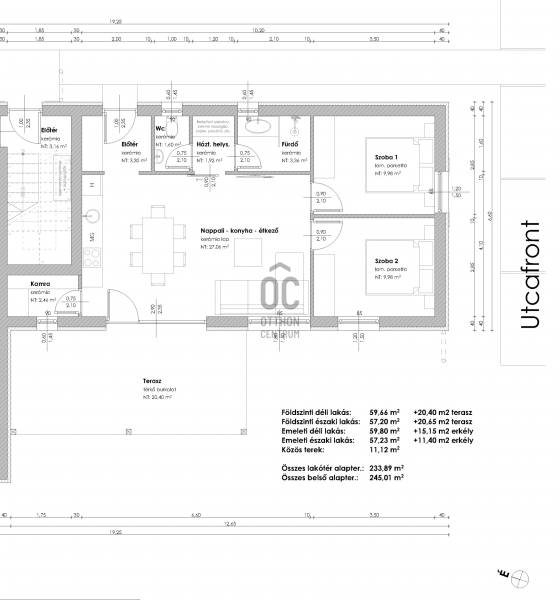
Alapterület: 58 m2
Fűtés: elektromos
Állapota: új
Szobák száma: 3
Építés éve: 2022
Szintek száma: -
Telekterület: -
Kert mérete: -
Erkély mérete: 20 m2
Felszereltség: -
Parkolás: -
Kilátás: udvari
Egyéb extrák:  
-

Részletes leírás

Kedves Érdeklődő!Egy új építésű, modern lakást kínálunk eladásra a Balaton egyik legfelkapottabb környékén, Siófok-Széplakon.A földszinti lakás alapterülete 68 nm, nappali + 2 hálószobával, és egy fürdőszobával rendelkezik, továbbá egy 20.65 nm-es kellemes terasz és a társasház kertjében saját 135 nm-es kertrész is tartozik hozzá.A lakás kiváló minőségben épül, a burkolatok kiválasztása után szinte azonnal költözhető.A lakásokhoz tartozó extra műszaki tartalmak, melyek mind a vételár részét képezik:-hűtő-fűtő klímaberendezés-automata motoros redőny szúnyoghálóval-kertépítés alap füvesítéssel és öntözőrendszerrel-minden lakás önálló víz- és villamos mérővel lesz felszerelve.-falazata 30 cm vastag Porotherm tégla, 12 cm-es külső hőszigeteléssel.-külső nyílászárói háromrétegű műanyagok, homlokzati nyílászárók fölött rejtett kialakítású redőnyszerkezet, beépített szúnyoghálóval.A társasház udvarában beálló 2,5millió ft ( kötelezően vásárolható)Az ingatlan fűtése elektromos cirko (padlófűtés), továbbá klímával is felszerelt, így az év minden szakában kellemes hőmérsékletet biztosít.A környék számos előnyös adottsággal rendelkezik. A közlekedési lehetőségek kiválóak, hiszen a városközpont és a Balaton-part is könnyen elérhető.Ezüstparti szabad strand csak 500 méterre található!A társasház csupán 4 lakásos, így ideális választás azoknak, akik kisebb lakásszámú házban szeretnének nyaralni/élni.Ha kérdése van az ingatlannal kapcsolatban, ne habozzon felvenni velünk a kapcsolatot. Ügyfeleink bizalmára építünk, így minden kérdésre szívesen válaszolunk.Várjuk hívását!Üdvözlettel, Az Otthon Centrum ingatlanközvetítő csapata

 Hirdető adatai

Hirdető neve: Otthon Centrum
Kapcsolattartó: Gruner Ivett
Hirdető telefonszáma: +36 70 716 8976
Honlap: -