Budapest, XV.kerület


 

Ingatlan adatai

Irányár: 57 600 000 Ft
Típus: lakás (panel)
Kategória: eladó
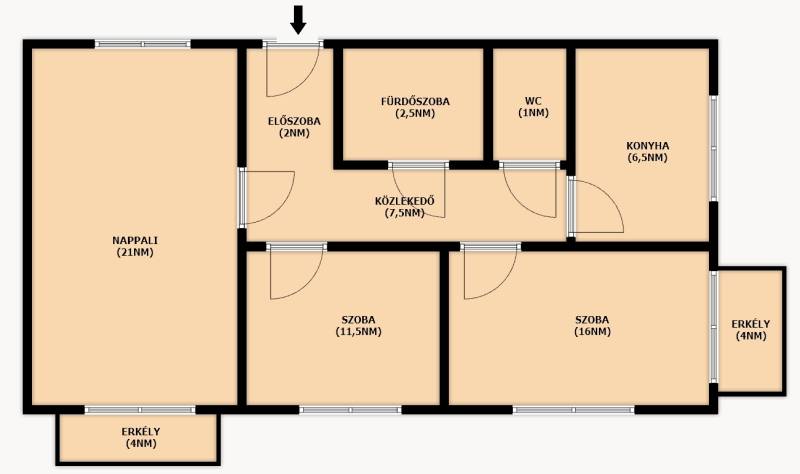
Alapterület: 68 m2
Fűtés: távfűtés
Állapota: -
Szobák száma: 3
Építés éve: 1982
Szintek száma: -
Telekterület: -
Kert mérete: -
Erkély mérete: 8 m2
Felszereltség: -
Parkolás: -
Kilátás: utcai
Egyéb extrák:  
-

Részletes leírás

XV. kerület Újpalota csendes, nyugodt, parkokkal átölelt részén, a Páskom parkban eladó I. emeleti, D-i tájolású, konyha + 3 szobás, 2 erkélyes kiváló adottságú, klimatizált, riasztóval felszerelt lakás + tároló.A társasház rendezett anyagi helyzetű, a lakóközösség és közösképviselet kiváló, az ingatlant folyamatosan fejlesztik, korszerűsítik. Teljes panelprogramon átesett épület (külső szigetelés, fűtéskorszerűsítés, nyílászárók cseréje, szúnyogháló).Alacsony rezsi (kb. 40 000 Ft/hó, közös költséggel együtt). Egyedi mérőórákkal felszerelt, szabályozható radiátorok minden helyiségben.Ingyenes parkolás a ház előtt.Környék:A Páskom park Újpalota legszebb, fákkal, parkokkal, játszóterekkel kiépített igazi zöldövezete. A tömegközlekedés:Újpest Fő tér 500 méterre (5 perc séta) – BKK 7, 7E, 8E, 133E – Bosnyák tér 6 perc - Keleti pályaudvar - 20 percÚjpalotai Vásárcsarnok és Piac – 10 perc sétaKözelben LIDL, ALDI, CBA, posta, edzőterem (PrimeFit)Részletekért hívjon! A hét minden napján elérhető vagyok.

 Hirdető adatai

Hirdető neve: Otthon Centrum
Kapcsolattartó: Otthon Centrum
Hirdető telefonszáma: +3614873300
Honlap: -