Budapest, XIII.kerület


 

Ingatlan adatai

Irányár: 1 390 000 000 Ft
Típus: lakás (újépítésű)
Kategória: eladó
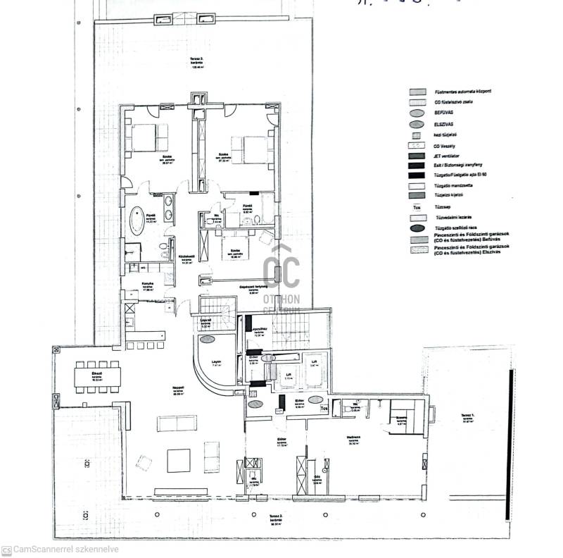
Alapterület: 281 m2
Fűtés: házközponti egyedi méréssel
Állapota: új
Szobák száma: 4
Építés éve: 2017
Szintek száma: -
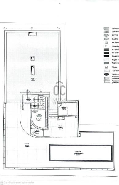
Telekterület: -
Kert mérete: -
Erkély mérete: 452 m2
Felszereltség: -
Parkolás: -
Kilátás: utcai
Egyéb extrák:  
-

Részletes leírás

Eladó a XIII. kerületben egy társasház legfelső szintjén egy 4 szobás luxus lakás,zöld kerttel, terasszal épített úszó medencével, kiépített grill terasszal.Ezenkívül wellness részleggel, amelyhez szauna, gőzfürdő, és külön napozó terasz tartozik! A Duna közelsége és a sok zöld park mellett a belvároshoz közeli elhelyezkedése miatt is minden korosztály számára élhető és kedvelt városrész a Vizafogó. A Dózsa György úti metró, a buszok (15/115) és a trolik (75/79) gyalog egyaránt pár perc alatt elérhetők. Egy népszerű iskola, óvoda, bölcsőde, orvosi rendelő és gyógyszertár szinte mindegyike a ház közvetlen közelében megtalálható. Vásárláshoz sem kell messze mennie: Spar, Penny, CBA, Rossmann, pék és zöldséges 200 m-en belül elérhető. Kávézók, gyorséttermek, sportolási lehetőségek és több játszótér is hozzájárul az itt élők jó közérzetéhez. XIII. ker Vizafogó városrészen közel a belvároshoz, de Dunára és a budai hegyekre rálátással eladó, ez a 270 m es luxus lakás, 4 szobával óriási 70 m2 es nappalival + étkezővel+konyhával.Itt nem amerikai álom a lift a lakáson belül áll meg, és egyből a előteredbe tudsz kilépni. A lakás egy nagy méretű zöld kerthez kapcsolódik, amely kizárólagos használatú,A lakás feletti szinten épített medence és kiépített grill sarok várja a tulajdonosát.Fal fűtés gondoskodik a melegről, a lakás belmagassága szintén exkluzív 4,5 m. extra méretű ablakok bíztosítják a fényt, amely minden napszakban megvan a lakásban, mert teljesen körbenapozott. A lakás kialakítása egy belső építész által vezetett jelenleg folyamatában lévő munka . Az enteriőr az alaprajz adottságait kihasználva, egyedi bútorokat álmodott meg, így például a nappalinak tökéletes dísze lett egy biokandalló, vagy az igényesen megtervezett egyéb beépített bútorok. Nemcsak impozáns, napfényes a konyha, hanem praktikus is, ahol a munkafelületek elég helyet biztosítanak egy nagy családi vacsora elkészítésére, minden kézre esik.A bútorok megválasztása és megtervezése mellett éppúgy gondos figyelmet fordítottak a gépesítésre is, melyekből a lehető legmegbízhatóbbakat választották ki. Egyedi igények kielégítésére épült lakás várja tulajdonosát, aki számára a luxus minőségű élettér itt elérhető, biztosított a magas színvonalú phenés és szórakozás is.

 Hirdető adatai

Hirdető neve: Otthon Centrum
Kapcsolattartó: Pataki József
Hirdető telefonszáma: +36 70 461 9671
Honlap: -