Veszprém megye, Ajka


 

Ingatlan adatai

Irányár: 79 000 000 Ft
Típus: ház
Kategória: eladó
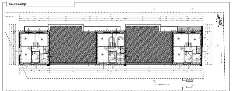
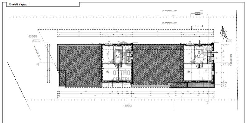
Alapterület: 90 m2
Fűtés: -
Állapota: új
Szobák száma: 3
Építés éve: 2025
Szintek száma: -
Telekterület: 178 m2
Kert mérete: 178 m2
Erkély mérete: 20 m2
Felszereltség: -
Parkolás: -
Kilátás: -
Egyéb extrák:  
-

Részletes leírás

Sikeresen működő, tapasztalt, megbízható kivitelezőtől eladó sorház.B3 lakás: 89,75 nm, hozzá tartozó telek: 177,65 nm.Építkezés folyamatban, várható kulcsrakész kivitelezés, átadás 2025. harmadik negyedév.Lakások műszaki tartalma:- az épület alápincézetlen 1 illetve 2 szintes lapostetős épület.- az épület vasalt sávalapokkal lesz alapozva. Az alapok felett lábazati fal készül 30 cm szélességgel zsalukőből amelyre kifut a vasalt aljzat, betonhálóval. A vasalt aljzatbeton alatt kavics feltöltés készül, geotextíliára.- A 1- és 2 szintes épület vb pillérjei, betonfalai szerkezeti méretű oszlopokkal, vasalva, zsaluzva, illetve esetenként zsalukőből kialakítva.- Főfalak: 25 és 30 cm-es Porotherm N+F falazattal készülnek.- Lakáselválasztó falak: Leiertherm 25 cm-es dupla falazat, hangszigeteléssel.- Áthidalók: monolit és kerámia áthidalók.- Födém: monolit vasbeton lemezek, szükséges áttörésekkel és attikaképzésekkel.- Lépcső: monolit vasbeton lépcső amely főfalakra és a födémekre támaszkodik fel.- Válaszfalak: Leier 10/50 cm-es válaszfaltéglából készülnek.- Korlátok: a külső erkélykorlátok saválló acél szerkezetek, illetve biztonsági üvegkorlátok minimum 95 cm magassággal, a kiviteli és a látványterveknek megfelelően. A belső korlátok saválló acél szerkezetek illetve biztonsági üvegkorlátok.Bővebb műszaki tartalomról érdeklődjön a megadott elérhetőségeken!Amennyiben Ön egy igényes ingatlant, kíván vásárolni gyönyörű környezetben, hívjon bizalommal, segítek a gyors, pontos ügyintézésben!Irodánk teljes körű hitel-, babaváró és CSOK ügyintézéssel, biztosítással, energetikai tanúsítvány készítéssel, valamint megbízható ügyvédi háttérrel segíti ügyfeleit.Valósítsa meg álmai otthonát velünk!Projekt bemutatásaAjka-Bakonygyepesen 9db új építésű sorház Eladó!Sikeresen működő, tapasztalt, megbízható kivitelezőtől eladó sorház.Építkezés folyamatban, várható kulcsrakész kivitelezés, átadás 2025. harmadik negyedév.Lakások műszaki tartalma:- az épület alápincézetlen 1 illetve 2 szintes lapostetős épület.- az épület vasalt sávalapokkal lesz alapozva. Az alapok felett lábazati fal készül 30 cmszélességgel zsalukőből amelyre kifut a vasalt aljzat, betonhálóval. A vasalt aljzatbeton alattkavics feltöltés készül, geotextíliára.- A 1- és 2 szintes épület vb pillérjei, betonfalai szerkezeti méretű oszlopokkal, vasalva,zsaluzva, illetve esetenként zsalukőből kialakítva.- Főfalak: 25 és 30 cm-es Porotherm N+F falazattal készülnek.- Lakáselválasztó falak: Leiertherm 25 cm-es dupla falazat, hangszigeteléssel.- Áthidalók: monolit és kerámia áthidalók.- Födém: monolit vasbeton lemezek, szükséges áttörésekkel és attikaképzésekkel.- Lépcső: monolit vasbeton lépcső amely főfalakra és a födémekre támaszkodik fel.- Válaszfalak: Leier 10/50 cm-es válaszfaltéglából készülnek.- Korlátok: a külső erkélykorlátok saválló acél szerkezetek, illetve biztonsági üvegkorlátokminimum 95 cm magassággal, a kiviteli és a látványterveknek megfelelően. A belső korlátoksaválló acél szerkezetek illetve biztonsági üvegkorlátok.Bővebb műszaki tartalomról érdeklődjön a megadott elérhetőségeken!Amennyiben Ön egy igényes ingatlant, kíván vásárolni gyönyörű környezetben, hívjon bizalommal, segítek a gyors, pontos ügyintézésben!Irodánk teljes körű hitel-, babaváró és CSOK ügyintézéssel, biztosítással, energetikai tanúsítvány készítéssel, valamint megbízható ügyvédi háttérrel segíti ügyfeleit.Valósítsa meg álmai otthonát velünk!

 Hirdető adatai

Hirdető neve: Otthon Centrum
Kapcsolattartó: Szabó Attila
Hirdető telefonszáma: +36 70 412 3461
Honlap: -