Budapest, XIV.kerület


 

Ingatlan adatai

Irányár: 91 882 Ft/hó
Típus: iroda
Kategória: kiadó
Alapterület: 34 m2
Fűtés: -
Állapota: -
Szobák száma: -
Építés éve: 1964
Szintek száma: -
Telekterület: -
Kert mérete: -
Erkély mérete: -
Felszereltség: -
Parkolás: -
Kilátás: -
Egyéb extrák:  
-

Részletes leírás

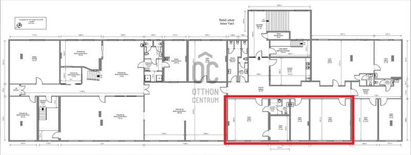
A piaci árnál sokkal kedvezőbb üzemeltetési költséggel fenntartható 1. emeleti kiadó irodát / irodákat kínálok a Bosnyák tér mellett.A teljes kiadó terület 99 m2, amely három egymás melletti, mégis jól elkülöníthető egységből áll:- a legnagyobb 48 m2-es, két helyiségből áll, saját mosdóval és teakonyhával rendelkezik- a középső 34 m2-es- a legkisebb 17 m2-es, saját kis teakonyhával (EZ MÁR KIADVA!)Egységenként 1-1 (összesen 3) parkolót tudunk biztosítani az udvaron.Az irodahelyiségek világosak, könnyen berendezhetőek, nagyon rövid határidővel költözhetőek.A bérleti díj 7 EUR + áfa, az üzemeltetési- és rezsiköltség 2,9 EUR + áfa m2-enként, ami jóval a piaci ár alatti árszint.Alkalmas:- irodának- szerviznek- oktatási vagy rekreációs helyszínnek- bemutatóteremnek- cégképviseletnek- webshopnak... és ezek kombinációinak.Megközelíthetősége mind tömegközlekedéssel (3, 62, 62A villamosok, többek közt 7, 7A, 32 buszok, 82 és 82A trolik), mind autóval kiváló.További információkért, időpontért keressen akár hétvégén is!

 Hirdető adatai

Hirdető neve: Otthon Centrum
Kapcsolattartó: Stark Péter
Hirdető telefonszáma: +36 70 461 9256
Honlap: -