Tolna megye, Szekszárd


 

Ingatlan adatai

Irányár: 1 270 000 Ft/hó
Típus: iroda
Kategória: kiadó
Alapterület: 764 m2
Fűtés: -
Állapota: -
Szobák száma: -
Építés éve: -
Szintek száma: -
Telekterület: -
Kert mérete: -
Erkély mérete: -
Felszereltség: -
Parkolás: -
Kilátás: -
Egyéb extrák:  
-

Részletes leírás

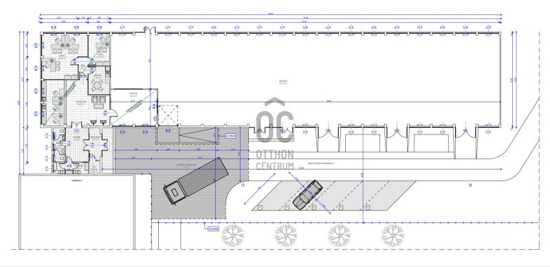
Szekszárdon kiváló helyen, a belvároshoz közel, de az M6-os autópályától mindössze 7 perc autóútra, behajtási– és súlykorlátozási övezeten kívül található az alábbi, 764 m2-es, 3,3 méter magas ipari létesítmény, mely az ingatlan besorolás szerint kivett telephely.Az épület felosztása:- Raktár: 591,7 m2 (temperálható)- Szigetelt raktár: 29,43 m2 (fűthető)- Irodarész: 106,37 m2- Szociális blokk (öltöző, külön női és férfi mellékhelyiségek): 36,3 m2Az épület 2023-ban teljeskörű felújításon esett át, mely a következőket tartalmazta:- 1,5 tonnás, vasalt ipari padló és rámpa kialakítása- Szekcionált garázskapu beépítése- Energiatakarékos led-világítás mind az iroda, mind a raktár területén- Nyílászárók cseréje hőszigetelt műanyag ablakokra- A tető hő- és vízszigetelése, bádogozása- Új szociális blokk- Mosogatógéppel felszerelt IKEA konyha- Villanyvezetékek, kapcsolók, dugaljak cseréje - Korszerű szaniterek beépítése- Hűtő-fűtő klímák felszerelése- Új hideg- és melegburkolat- Szalagfüggöny árnyékolók az irodákban- Hőfüggöny- Kamera- és riasztórendszer telepítése- Elektromos tolókapuAz épület fűtése és hűtése hőszivattyúval és hűtő-fűtő klímákkal megoldott. Vezetékes gáz nincs a területen. A közüzemi szolgáltatások díját – a bérlő tényleges, mért fogyasztása alapján – a bérbeadó számlázza ki közvetített szolgáltatásként, mely a bérleti díjon felül fizetendő.A jelenleg nagykereskedelmi raktárként használt ipari létesítmény egyéb üzleti tevékenységre is kiválóan alkalmas. A bérlemény kerítéssel körülhatárolt.A jövőbeni bérlő kizárólagosan használhatja az épület körüli területet, melyen nagyjából 10 gépkocsi parkolására alkalmas parkolóhelyet is tartalmaz.Igény esetén a bérleti időszak ideje alatt a bérlő használhatja az irodabútorokat, az ügyfélszolgálati pultot, az állványrendszereket, a Paradox riasztórendszert és az épület nyolc pontján felszerelt IP-kamerákat is. Bérleti időszak: minimum 24 hónapBérleti díj: 1.000.000 Ft + ÁFA/hóKaució: 2 havi bérleti díj összege

 Hirdető adatai

Hirdető neve: Otthon Centrum
Kapcsolattartó: Vágvölgyi Dominik
Hirdető telefonszáma: +36 70 412 3881
Honlap: -