Pest megye, Dunakeszi


 

Ingatlan adatai

Irányár: 49 900 000 Ft
Típus: kereskedelmi/ipari ingatlan
Kategória: eladó
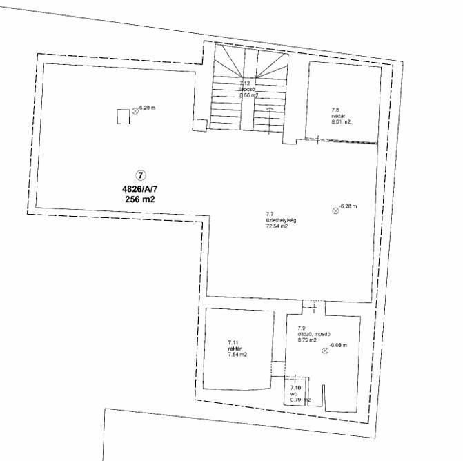
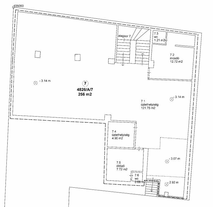
Alapterület: 256 m2
Fűtés: -
Állapota: -
Szobák száma: -
Építés éve: -
Szintek száma: -
Telekterület: -
Kert mérete: -
Erkély mérete: -
Felszereltség: -
Parkolás: -
Kilátás: -
Egyéb extrák:  
-

Részletes leírás

Kiváló befektetési lehetőség: Edzőterem eladó bérlővel együtt!Eladó egy 256 nm-es üzlethelyiség, mely jelenleg edzőteremként üzemel, és bérlővel együtt keres új tulajdonost. Az ingatlan két szintből áll: egy szuterénből és egy pinceszintből, amelyben egy svéd szauna is helyett kapott. A tulajdonos a vételárba beszámít lakást, telket, nagyobb értékű autót is.A helység klímával fűtött és külön vízórával rendelkezik, ami biztosítja a kényelmes működést. Az ingatlanhoz két külön bejárat is tartozik, az egyik az utcáról a lépcsőházon keresztül közelíthető meg, míg a másik közvetlenül a szuterén részből.A bérlő jelenleg havi 290.000 Ft bérleti díjat fizet, így ideális választás azoknak, akik stabil jövedelmet szeretnének elérni.Főbb jellemzők:Két szint: szuterén és pinceszintSvéd szauna a pinceszintenKiváló forgalmas helyszínFűtés klímávalKülön vízóraJelenleg bérlőnek kiadvaHa felkeltette érdeklődését, vegye fel velünk a kapcsolatot, és további információkat biztosítunk!

 Hirdető adatai

Hirdető neve: Otthon Centrum
Kapcsolattartó: Kis Vanessza Fanni
Hirdető telefonszáma: +36 70 469 3836
Honlap: -