Budapest, XXII.kerület


 

Ingatlan adatai

Irányár: 481 355 Ft/hó
Típus: kereskedelmi/ipari ingatlan
Kategória: kiadó
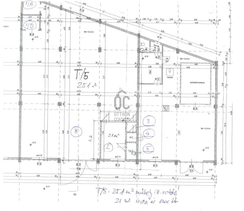
Alapterület: 272 m2
Fűtés: -
Állapota: -
Szobák száma: -
Építés éve: -
Szintek száma: -
Telekterület: -
Kert mérete: -
Erkély mérete: -
Felszereltség: -
Parkolás: -
Kilátás: -
Egyéb extrák:  
-

Részletes leírás

12 tonna feletti kamionnal behajtási engedély nélkül megközelíthető, emellett kiváló lokációval és infrastruktúrával rendelkező telephelyen belül, elhelyezkedő, raktár+iroda, kiadó.251 m2 raktár21 m2 iroda+szociális blokkA telepen nyújtott szolgáltatások:0-24 órás portaszolgálat,folyamatos karbantartási szolgálat,08-15 óráig üzemelő étterem, kávézó,kommunális szemét elszállítás,park, úthálózat rendben tartása.A bérleti díjon felül, 1,5 Euró/m2/hó üzemeltetési díj fizetendő.A kaució mértéke, három havi bérleti díj.A bérleti díjat 27% ÁFA terheli.

 Hirdető adatai

Hirdető neve: Otthon Centrum
Kapcsolattartó: Szilágyi Dezső
Hirdető telefonszáma: +36 70 716 8811
Honlap: -