Hajdú-Bihar megye, Debrecen


 

Ingatlan adatai

Irányár: 114 900 000 Ft
Típus: ház
Kategória: eladó
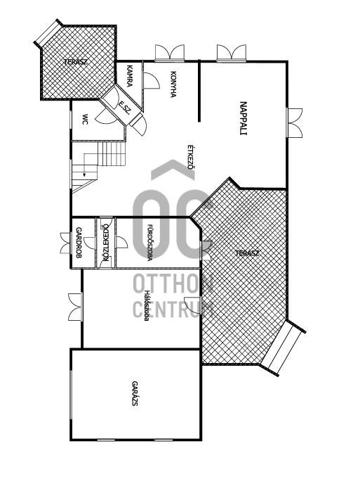
Alapterület: 180 m2
Fűtés: gáz (cirko)
Állapota: -
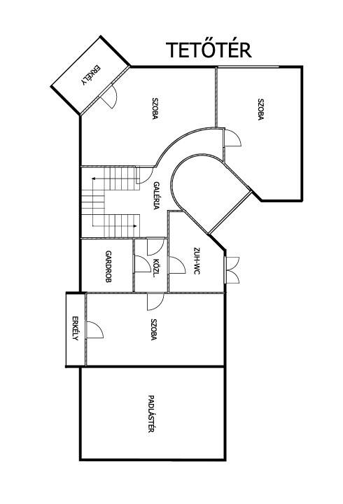
Szobák száma: 5
Építés éve: 1998
Szintek száma: -
Telekterület: 588 m2
Kert mérete: 588 m2
Erkély mérete: 52 m2
Felszereltség: -
Parkolás: -
Kilátás: -
Egyéb extrák:  
-

Részletes leírás

Debrecen, Tégláskertben nappali+5 szobás, 2 fürdőszobás, 1998-ban épült, galériás családi ház, 588 nm-es parkosított telekkel eladó!Egy különleges lehetőséget kínálunk mindenki számára, akik álmaik otthonát keresik Debrecenben, a csendes és rendezett Tégláskert városrészben. A ház 180 nm-es alapterületével és 588 nm-es telekméretével ideális választás családok számára, vagy akár befektetési céllal is. Az ingatlanban található öt szoba és két fürdőszoba maximális kényelmet biztosít, a tágas nappali pedig a közös pillanatok színtere lehet. A prémium kivitelezés és az egyedi tervezés garantálja, hogy az otthon nemcsak funkcionális, hanem esztétikus is. A ház világos, galériás elrendezése különleges atmoszférát teremt, amely a beépített bútorok és szekrények révén még praktikusabbá válik. A 40 nm-es terasz és a 12 nm-es erkély tökéletes helyszínt biztosít a pihenésre, ahol a rendezett kert látványa és a csendes környék nyugalma még inkább fokozza a kikapcsolódás élményét. Ingatlan jellemzői:- műanyag nyílászárók 2 rétegű üvegezéssel, redőnnyel- 38-as tégla falazat külső szigeteléssel- gáz és villany kazán- padló valamint radiátoros fűtésrendszer- 3 fázis- Riasztó, kaputelefon- garázs 24 nm-es- motoros mozgatású kerti kapu- tehermentesPraktikus tér kialakítása, sok ablaka miatt világos, kellemes hangulatú ingatlan. Többgyermekes családok számára kiváló választás, hiszen a tágas amerikai konyhás nappali 50 nm feletti, ahonnan közvetlen kijárat van a teraszra.Az ingatlan könnyen megközelíthető gépkocsival, busszal, az autópályára való feljutás is csak néhány perc.Közelben bevásárlóközpont, óvodák, iskolák, gyógyszertár, orvosi rendelő, piac és vendéglátás és minden egyéb szolgáltatás elérhető.Az ingatlanról teljes körű videó felvétel készült, a megtekintése érdekében weboldalunkon keresse a H497585 regisztrációs számon vagy keressen telefonon közvetlenül.Amennyiben ezt a ritka , egyedi paraméterekkel rendelkező ingatlan felkeltette érdeklődését várom telefonos megkeresését.

 Hirdető adatai

Hirdető neve: Otthon Centrum
Kapcsolattartó: Hriczuné Sápi Júlia
Hirdető telefonszáma: +36 70 461 9406
Honlap: -