Pest megye, Pilisvörösvár


 

Ingatlan adatai

Irányár: 253 618 Ft/hó
Típus: iroda
Kategória: kiadó
Alapterület: 1 000 m2
Fűtés: -
Állapota: -
Szobák száma: -
Építés éve: 2025
Szintek száma: -
Telekterület: -
Kert mérete: -
Erkély mérete: -
Felszereltség: -
Parkolás: -
Kilátás: -
Egyéb extrák:  
-

Részletes leírás

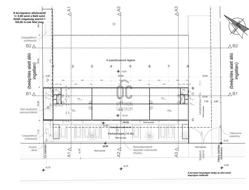
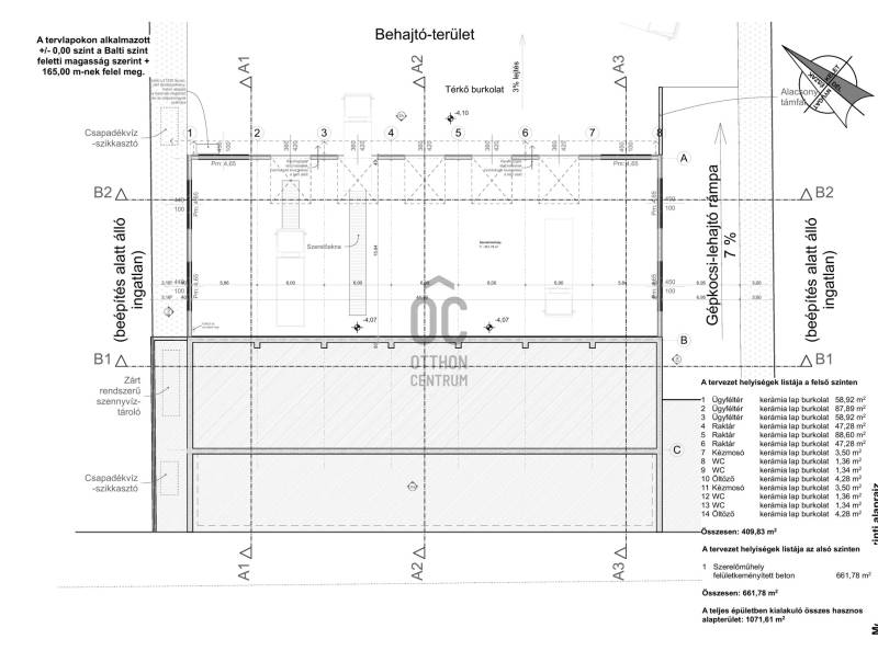
Kiadó Pilisvörösvár legnagyobb forgalmú ipari parkjában üzlethelyiség, iroda vagy bemutatóterem funkcióra alkalmas területekből a következő méretű egységek maradtak még szabadon:124nm, 186nm és 248nm. A teljesen új építésű ingatlan közvetlen utcafrontos, homlokzata végig hatalmas üvegfelülettel tagolt, közvetlen saját parkolókkal rendelkezik. Az ingatlan közvetlen szomszédságában rengeteg kereskedelmi és szolgáltató egység található.

 Hirdető adatai

Hirdető neve: Otthon Centrum
Kapcsolattartó: Kalicz Zoltán
Hirdető telefonszáma: +36 70 461 9886
Honlap: -