Budapest, II.kerület


 

Ingatlan adatai

Irányár: 2 500 000 Ft/hó
Típus: lakás (újépítésű)
Kategória: kiadó
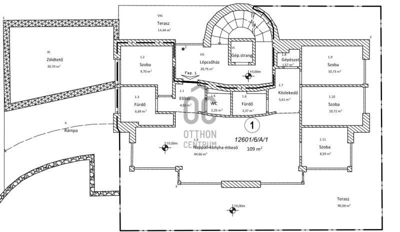
Alapterület: 109 m2
Fűtés: -
Állapota: új
Szobák száma: 5
Építés éve: 2024
Szintek száma: -
Telekterület: -
Kert mérete: -
Erkély mérete: 91 m2
Felszereltség: -
Parkolás: -
Kilátás: kertre néző
Egyéb extrák:  
-

Részletes leírás

A modern életstílus kedvelői számára kínálunk bérbeadásra egy különleges ingatlant, mely Budapest II. kerületének egyik legfelkapottabb részén található.Ez a tágas, nagyteraszos, kertkapcsolatos lakás ideális választás lehet azok számára, akik a kényelmet és a minőséget keresik. Az ingatlan alapterülete 109 négyzetméter, amely tágas nappalival és négy szobával rendelkezik, így tökéletesen alkalmas lehet akár irodai, akár lakófunkciók betöltésére. Az ingatlanhoz két fürdőszoba tartozik, amelyek a kényelmet és a funkcionalitást szolgálják. A lakás igényes kialakítása mellett külön figyelmet érdemel a terasz, amely 91 négyzetméteres és a két autó parkolására kialakított teremgarázshely. (Az épületben még található a második emeleten egy 108 nm-es lakás + 2 x 16 nm erkéllyel + 2 x 12 nm terasszal + 19 nm terasszal , valamint az első emeleten két lakás, lakásonként 57 nm + 9 nm erkély, illetve a terem garázsban 1-1, a penthouse lakáshoz 2 parkolóhely. Külön-külön is, de akár egyben az egész is kiadó!)Az amerikai konyha és a világos nappali tökéletes teret ad a közös pillanatoknak, míg a 91 négyzetméteres terasz és kertkapcsolat tökéletes helyszín a pihenésre és a baráti összejövetelekre.. A lakás modern dizájnja és kiváló állapota egyedülálló lehetőséget teremt a nyugodt életvitelhez.A lakás modern kialakítása mellett a legújabb technológiákat is felvonultatja, mint például a hőszivattyús fűtés, integrált szúnyoghálók és motoros redőnyök, amelyek garantálják a maximális kényelmet. A biztonsági ajtó és a belső lift hozzáadott értéket képviselnek, hiszen a biztonság és kényelem mindannyiunk számára elsődleges fontosságú.A környék ellátottsága kiváló, számos bolt, étterem és szórakozási lehetőség a közelben, nem utolsósorban a környék kedvelt bevásárló központja a Rózsakert, mindössze 5 perc sétatávolságra található. A kitűnő közlekedésnek köszönhetően könnyedén elérheti a város bármely pontját, legyen szó autós közlekedésről vagy tömegközlekedésről. Ez a lakás nem csupán egy ingatlan, hanem egy életstílus, amely a modern kényelem és a városi dinamizmus tökéletes egyensúlyát kínálja. Ha Ön is szeretne részese lenni ennek a különleges lehetőségnek, ne habozzon kapcsolatba lépni velem! Bizalommal kereshet bármilyen kérdéssel, szívesen segítek Önnek megtalálni a tökéletes otthont vagy befektetési lehetőséget.

 Hirdető adatai

Hirdető neve: Otthon Centrum
Kapcsolattartó: Solt Péter
Hirdető telefonszáma: +36 70 716 8101
Honlap: -