Budapest, II.kerület


 

Ingatlan adatai

Irányár: 1 000 000 Ft/hó
Típus: lakás (újépítésű)
Kategória: kiadó
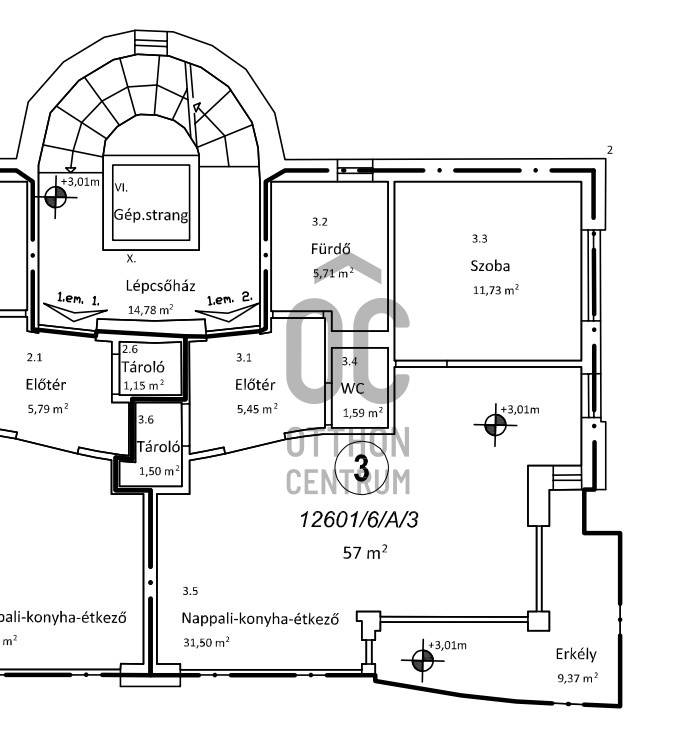
Alapterület: 57 m2
Fűtés: -
Állapota: új
Szobák száma: 2
Építés éve: 2024
Szintek száma: -
Telekterület: -
Kert mérete: -
Erkély mérete: 10 m2
Felszereltség: -
Parkolás: -
Kilátás: udvari
Egyéb extrák:  
-

Részletes leírás

A modern életstílus kedvelői számára kínálunk bérbeadásra egy különleges ingatlant, mely Budapest II. kerületének egyik legfelkapottabb részén található.Ez az erkélyes, nappali plusz hálószobás lakás ideális választás lehet azok számára, akik a kényelmet és a minőséget keresik. Az ingatlan alapterülete 57 négyzetméter + 9,5 nm erkély + teremgarázs hely. (Az épületben még található a földszinten egy 109 nm-es lakás 91 nm terasszal, kertkapcsolattal, valamint az első emeleten még egy (ennek a tükörképe) lakás, 57 nm + 9 nm erkély, továbbá a második emeleten egy belső kétszintes penthouse lakás, 108 nm, amihez kapcsolódik 2 x 6 nm erkély, 2 x 12 nm valamint egy 19 nm-es tetőterasz is még), illetve a terem garázsban 1 parkolóhely az első emeleti lakáshoz, 2-2 pedig a földszinti és a penthouse lakáshoz. Külön-külön is, de akár egyben az egész is kiadó!)Az amerikai konyha és a világos nappali tökéletes teret ad a közös pillanatoknak, míg a 9,5 négyzetméteres erkély lehetőséget ad arra is, hogy a szabadban fogyassza el a reggeli kávéját, a friss levegőn. A lakás modern dizájnja és kiváló állapota egyedülálló lehetőséget teremt a nyugodt életvitelhez.A lakás modern kialakítása mellett a legújabb technológiákat is felvonultatja, mint például a hőszivattyús fűtés, integrált szúnyoghálók és motoros redőnyök, amelyek garantálják a maximális kényelmet. A biztonsági ajtó és a lépcsőházban levő lift hozzáadott értéket képviselnek, hiszen a biztonság és kényelem mindannyiunk számára elsődleges fontosságú.A környék ellátottsága kiváló, számos bolt, étterem és szórakozási lehetőség a közelben, nem utolsósorban a környék kedvelt bevásárló központja a Rózsakert, mindössze 5 perc sétatávolságra található. A kitűnő közlekedésnek köszönhetően könnyedén elérheti a város bármely pontját, legyen szó autós közlekedésről vagy tömegközlekedésről. Ez a lakás nem csupán egy ingatlan, hanem egy életstílus, amely a modern kényelem és a városi dinamizmus tökéletes egyensúlyát kínálja. Ha Ön is szeretne részese lenni ennek a különleges lehetőségnek, ne habozzon kapcsolatba lépni velem! Bizalommal kereshet bármilyen kérdéssel, szívesen segítek Önnek megtalálni a tökéletes otthont vagy befektetési lehetőséget.

 Hirdető adatai

Hirdető neve: Otthon Centrum
Kapcsolattartó: Solt Péter
Hirdető telefonszáma: +36 70 716 8101
Honlap: -