Fejér megye, Lovasberény


 

Ingatlan adatai

Irányár: 395 000 000 Ft
Típus: iroda
Kategória: eladó
Alapterület: 1 700 m2
Fűtés: -
Állapota: -
Szobák száma: -
Építés éve: 2014
Szintek száma: -
Telekterület: -
Kert mérete: -
Erkély mérete: -
Felszereltség: -
Parkolás: -
Kilátás: -
Egyéb extrák:  
-

Részletes leírás

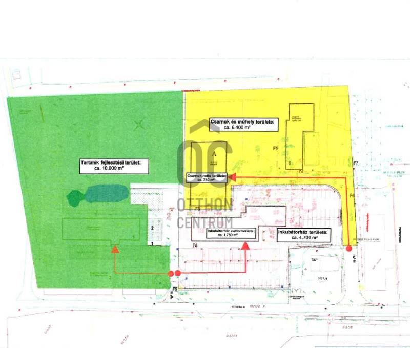
Székesfehérvártól 15 percre, Lovasberény, Lujza majorban minden igényt kielégítő Inkubátorház és a hozzátartozó terület eladó.Az ingatlan kiválóan alkalmas klasszikus cégközpont, irodaház funkcióra, továbbá egészségügyi szolgáltatóház, rehabilitációs intézmény, munkásszállás, kollégium, oktatási intézmény, idősek otthona, lakások kialakítására, vagy akár rendezvények megtartására is alkalmas.A 2500 nm-es, kiváló állapotú ingatlanunk Lovasberényben található, Fejér vármegyében, a Lujza majorban.Ideális választás azoknak, akik modern, akadálymentesített irodát keresnek bővítési lehetőséggel, ipari területen.A telekmérete 25000 nm, így bőven van helye az esetleges bővítésre vagy további fejlesztésekre.Az ingatlan megújuló fűtéssel rendelkezik, így környezettudatosan működik. Az ingatlanunk jelenleg irodaként funkcionál, de a jövőben más tevékenységekre is alkalmas lehet.Az épületet portaszolgálat biztosítja, így biztonságosan dolgozhatnak az épületben. A környék csendes és biztonságos, így ideális választás azoknak, akik nyugodt környezetben szeretnének dolgozni.Könnyen megközelíthető autóval és tömegközlekedéssel is. Az ingatlanunk a 811-es főút mellett található, így könnyedén megközelíthető autóval is.A kettő, illetve a három szintes, összesen 1700 m2 hasznos alapterületű irodaház 2014-ben teljes felújításon és korszerűsítésen esett át. Ennek eredményeképpen 20-100 m2-s exkluzív kialakítású irodák, oktató és bemutatótermek, tárgyalók, illetve, az épület minden folyosóján saját konyha, étkező és vizesblokk került kialakításra. A legfelső emeleten egy 160 m2-s szolgálati lakás kapott helyetAz épület főbb jellemzői:-fűtése 2 db faaprítékos automata, számítógép vezérlésű kazán,-napkollektoros meleg víz ellátás,-esővíz egy 50 m3-s tárolóban gyűlik, amely visszaforgatva a mellékhelyiségek víz igényét szolgálja ki,-lift biztosítja az akadály mentes közlekedést,-központi szerver- és telefonközpont,-térkővel burkolt, 95 férőhelyes gépkocsi parkoló,- sorompós beléptető rendszer, térfigyelő kamerák-a terület bővíthető a mögötte lévő szintén bekerített, 23963 m2-s ipari telekkel.A területen további fejlesztési lehetőségek is előkészítésre kerültek, a már meglévő, felújítandó épületre kész tervek állnak rendelkezésre, egy 24 lakásos apartmanház, vagy nyugdíjas otthon kialakítására is alkalmas lehet.Igény szerint, a fő épület mellett működő, 800 m2-es csarnok is eladásra kerülhet.A terület GKSZ besorolása szerint:-legkisebb kialakítható telekterület 8000 m2,-megengedett legnagyobb beépíthetőség 30 %-minimális zöldfelület 30 %-egy telken több főépület is elhelyezhető-legnagyobb építménymagasság 9,5 méter.Jöjjön és nézzük meg együtt!Ha bármi kérdése van az ingatlannal kapcsolatban vagy az ön ingatlanát el kell adni a vásárláshoz, hívjon bizalommal.Amennyiben hitelre van szüksége, az Otthon Centrum az ország egyik legnagyobb és legmegbízhatóbb hitelközvetítőjeként, teljes körű és díjmentes hitel ügyintézéssel áll rendelkezésére.Kérje személyre szabott ajánlatunkat!

 Hirdető adatai

Hirdető neve: Otthon Centrum
Kapcsolattartó: Dusnoki Éva
Hirdető telefonszáma: +36 70 461 9031
Honlap: -