Tolna megye, Fadd


 

Ingatlan adatai

Irányár: 164 500 000 Ft
Típus: kereskedelmi/ipari ingatlan
Kategória: eladó
Alapterület: 500 m2
Fűtés: -
Állapota: -
Szobák száma: -
Építés éve: 1995
Szintek száma: -
Telekterület: -
Kert mérete: -
Erkély mérete: -
Felszereltség: -
Parkolás: -
Kilátás: -
Egyéb extrák:  
-

Részletes leírás

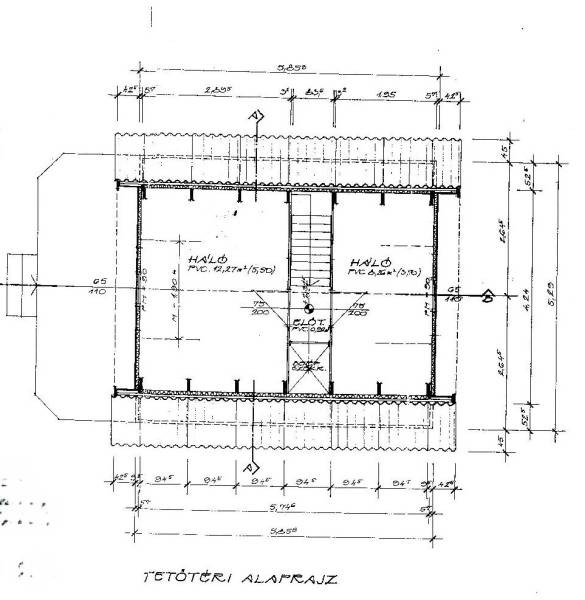
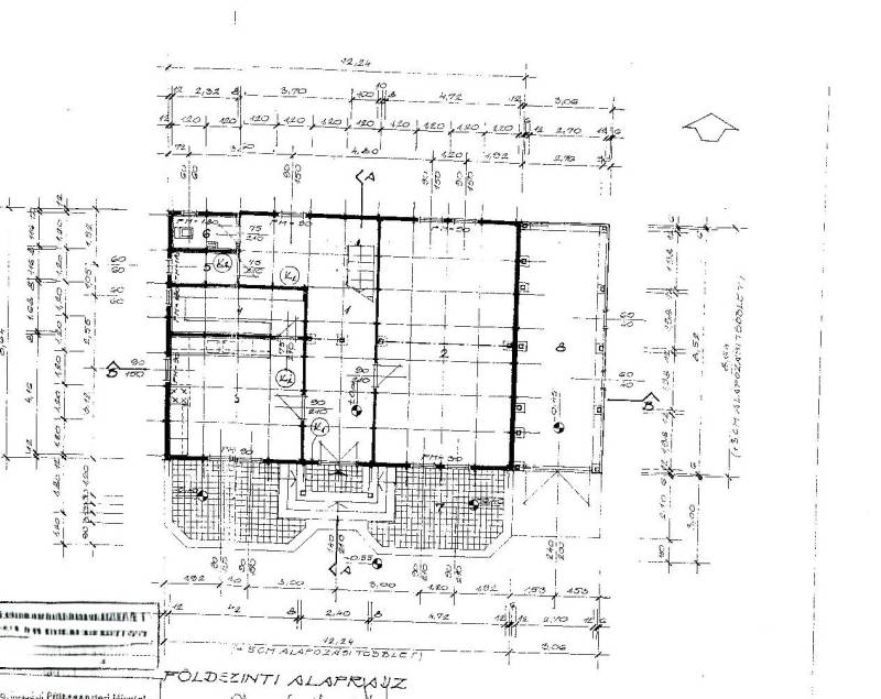
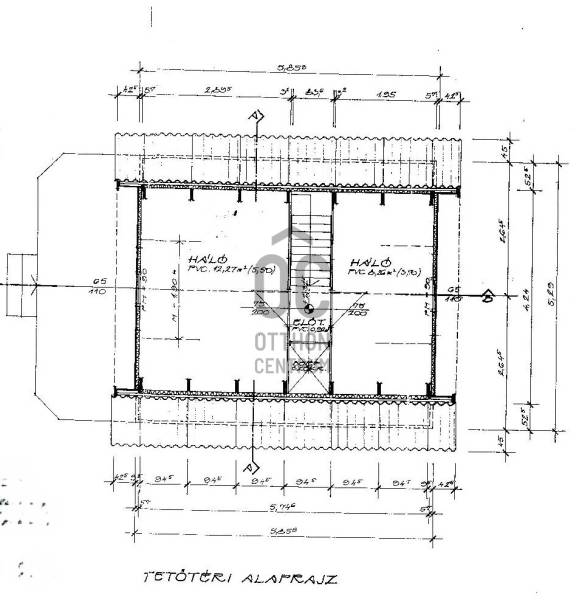
ELADÓ MOTEL ÉS APARTMAN KOMPLEXUM A HOLT-DUNA MELLETT – BEFEKTETŐKNEK, ÜDÜLTETŐKNEK, NYARALÓKNAK!- Akár 70 fő elszállásolására alkalmas!- Fadd, Volent-öböl (Tolna megye, Paks közelében)- A Holt-Duna partján – csendes, természeti környezetben- Teljes berendezéssel és felszereléssel eladó!Megvételre kínálunk egy kiváló állapotú, jelenleg is működő motel-, apartman- és lakóház együttesből álló ingatlant Faddon, a Volent-öböl varázslatos környezetében.A komplexum főbb jellemzői: - 3 apartmanos panzió (összesen 14 férőhellyel – tetőtéri és földszinti apartmanok)- 6 különálló kétszintes apartmanház (összesen kb. 36 férőhellyel)- 175 m²-es családi lakóház (4 szoba, nappali, konyha, 2 szint, padlófűtés, ipari áram)- Saját gépészettel ellátott 11x5 m-es sós vízű medence- Parkosított kert, kerti pihenő- Zárt udvar elektromos kapuval, kiépített parkolók minden házhoz- Riasztórendszer, kábel TV, internet, jól felszerelt konyhák- A terület több irányból is megközelíthető, pár perc sétára van a Duna-part. Az új kerékpárút révén a népszerű Fadd-Dombori üdülőtelep is könnyen elérhető.- Kiváló befektetési lehetőség: Ideális turisztikai célra: nyaralóparadicsom, üdülőfalu, horgásztanya. Alkalmas munkásszállónak, idősek otthonának- További bővítési lehetőség (a lakóház átalakításával akár 10–20 fővel bővíthető a férőhelyek száma)Az ingatlanok övezeti besorolása:-A lakóingatlan Üh jelű hétvégiházas üdülő területhez tartozikoldalhatáron álló beépítési mód20%-os legnagyobb beépíthetőség60%-os minimális zöldfelület4,5 m épületmagasság-Az apartmanok Üü jelű üdülőházas építési övezetbe tartoznakszabadon álló beépítési mód30%-os legnagyobb beépíthetőség40%-os minimális zöldfelület7,5 m épületmagasságElhelyezkedés:- Paks: 20 km (új Duna-híddal még könnyebb átkelés)- Szekszárd: 25 km- M6-M9 autópálya: gyors elérhetőség Budapest, Pécs, Baja irányába Ne hagyja ki ezt a páratlan lehetőséget! Ha felkeltette érdeklődését, keressen bizalommal további információért és megtekintésért! UZ018367Az ingatlan a lakóház nélkül is megvásárolható!Kedves Ügyfelünk, az ingatlanról videót is készítettünk. Ha ezt a hirdetést az Otthon Centrum weboldalán nézi, akkor a videóra a képek után tud kattintani. Ha egy másik weboldalon találta ezt a hirdetést, kérem nyissa meg az Otthon Centrum weboldalát, kattintson a „Regisztrációs szám keresése” menüpontra, és írja be ezt a regisztrációs számot a keresőbe: UZ018367 Itt meg tudja tekinteni az ingatlanról készült videót. Vagy írjon nekem, és szívesen elküldöm a videót.

 Hirdető adatai

Hirdető neve: Otthon Centrum
Kapcsolattartó: Máté Dóra
Hirdető telefonszáma: +36 70 469 3581
Honlap: -