Budapest, XVIII.kerület


 

Ingatlan adatai

Irányár: 350 000 000 Ft
Típus: iroda
Kategória: eladó
Alapterület: 500 m2
Fűtés: -
Állapota: -
Szobák száma: -
Építés éve: -
Szintek száma: -
Telekterület: -
Kert mérete: -
Erkély mérete: -
Felszereltség: -
Parkolás: -
Kilátás: -
Egyéb extrák:  
-

Részletes leírás

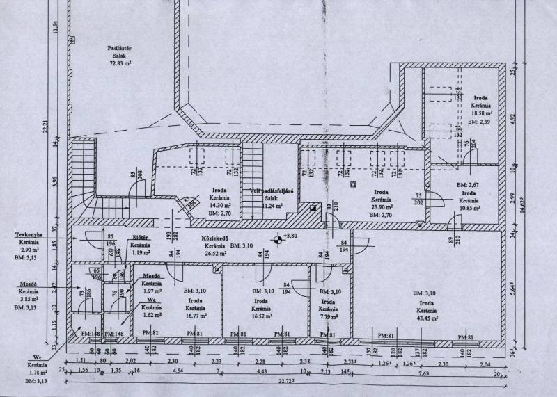
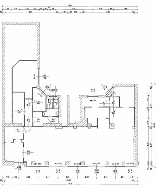
Pestszentlőrinc központi részén kétszintes, szintenként 250 m2-es, klimatizált ingatlan 200 m2-es pincével eladó. A földszinten külön, utcai bejáratú üzlet, az emeleten külön, udvari bejáratú irodák lettek kialakítva. Lásd alaprajzok. Mindegyik szintnek külön mérőórái (víz, villany, gáz) vannak. Külön gázkazánnal, villanybojlerrel ellátva.

 Hirdető adatai

Hirdető neve: RARIK-1986 Kft.
Kapcsolattartó: Roland Vörös
Hirdető telefonszáma: 06-20-571-8880
Honlap: -