Budapest, VI.kerület


 

Ingatlan adatai

Irányár: 23 000 000 Ft
Típus: kereskedelmi/ipari ingatlan
Kategória: eladó
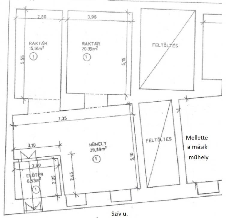
Alapterület: 72 m2
Fűtés: -
Állapota: -
Szobák száma: -
Építés éve: 1920
Szintek száma: -
Telekterület: -
Kert mérete: -
Erkély mérete: -
Felszereltség: -
Parkolás: -
Kilátás: -
Egyéb extrák:  
-

Részletes leírás

- Kitűnő közlekedési feltételek mellett, M1 Metro- Nagy méretű, 72 nm, több helyiségből álló- Utcáról megközelíthető- Közművekkel ellátott- Felújitandó- Több hasznosításra alkalmas, felújítás esetén üzletnek, kávézónak, cégképviseletnek, bemutatóteremnek, műhelyként hasznosítható- Mellette, hozzá csatolhatóan van egy másik , 67 nm-es műhely, összevonás esetén 2 bejáratú ingatlan jönne létre.A társasház tetőterében luxus lakások lesznek kialakítva, vélhetően igény lehet a továbbiakban a társasház részére akár fitnesz teremre, akár bármilyen közösségi térre is kiválóan alkalmas az ingatlan.Amennyiben a belvárosban, központi helyen keres, több célra alkalmas kitűnő ár-értékarányú nagy alapterületű felújítandó műhelyt, üzlethelyiséget, várom megtisztelő megkeresését.

 Hirdető adatai

Hirdető neve: Otthon Centrum
Kapcsolattartó: Varga Olga
Hirdető telefonszáma: +36 70 469 3806
Honlap: -