Pest megye, Vác


 

Ingatlan adatai

Irányár: 79 000 000 Ft
Típus: lakás (újépítésű)
Kategória: eladó
Alapterület: 66 m2
Fűtés: -
Állapota: új
Szobák száma: 3
Építés éve: 2025
Szintek száma: -
Telekterület: -
Kert mérete: -
Erkély mérete: 23 m2
Felszereltség: -
Parkolás: -
Kilátás: kertre néző
Egyéb extrák:  
-

Részletes leírás

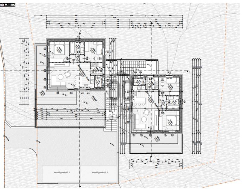
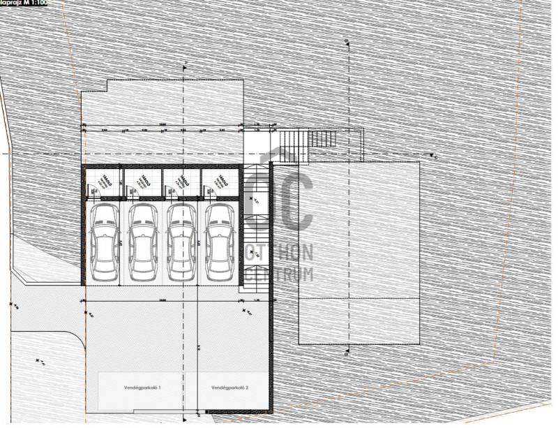
ÖRÖK PANORÁMÁS ÚJ ÉPíTÉSŰ, NAPELEMES LAKÁSOK!Vácon a Bácska dűlőben kínálunk eladásra teraszos, kertkapcsolatos lakásokata PIlis hegységre és a szentendrei szigetre néző panorámával.Az épület dny-i tájolásának köszönhetően a lakások rendkívül világosak, benapozottak.Magas műszaki tartalom, igényes kivitelezés referenciákkal bíró kivitelezőtől.A korszerű technológiának és a napelemes rendszernek köszönhetően egy alacsonyköltségen fenntartható értékálló ingatlant vásárolhatunk.A három szintes négylakásos társasház egy zárt telken kerül kialakításra.A garázs szinten fedett kocsibeálló és a hozzájuk tartozó tároló opcionálisan megvásárolható.Valamennyi lakáshoz 1-1 nyitott udvari kocsibeálló tartozik.Az \"A\" és \"B\" épületrészt egy külső lépcsősor választ el egymástól. Mindkét épületbenegy földszinti és egy emeleti lakás kap majd helyet.GARÁZSZSZINT:Az \"A\" épület garázsszintjén négy darab garázs és a hozzájuk tartozó tárolók kerülnekmajd kialakításra. Garázs+tároló 10 M ft ellenében megvásárolható.\"A\" ÉPÜLET:\"A1\" földszinti lakás 54 nm, 2 háló+nappali, fürdő+wc, wc+mosdó, közlekedő23,8 nm fedett terasz kertkapcsolattal, udvari kocsibeálló.\"A2\" emeleti lakás 54 nm, 2 háló+nappali, fürdő+wc, wc+mosdó, közlekedő12,2 nm fedett terasz, udvari kocsibeálló.\"B\" ÉPÜLET:\"B1\" földszinti lakás 54 nm, 2 háló+nappali, fürdő+wc, wc+mosdó, közlekedő22,9 nm fedett terasz kertkapcsolattal, udvari kocsibeálló.\"B2\" emeleti lakás 54 nm, 2 háló+nappali, fürdő+wc, wc+mosdó, közlekedő14,6 nm fedett terasz, udvari kocsibeálló.Jelen hírdetés az\"B1\"-jelű jobb oldali földszinti lakás leírása.A lakások tervezett átadása 2026 nyara.MŰSZAKI TARTALOM:Vasbeton sávalap.Teherhordó falazat 25 cm-es Porotherm falazóelem 15 cm-es homlokzatiszigeteléssel. Monolit vasbeton födém. Korcolt lemez fedés. Műanyag 3 rétegűnyílászárók szúnyoghálóval redőnnyel szerelve.Hőszivattyús fűtés és melegvízellátás. Padlófűtés és mennyezethűtés.5 KW napelemes rendszer tároló akkumulátorral.Amivel segíteni tudjuk az Ön ingatlanvásárlását:-ingyenes, bankfüggetlen hitelügyintézés-jogi háttér-földhivatali ügyintézés-energetikai tanúsítvány készítése-értékbecslésAmennyiben a hirdetés felkeltette érdeklődését kérem forduljon hozzám bizalommal.

 Hirdető adatai

Hirdető neve: Otthon Centrum
Kapcsolattartó: Prencsok Tamás
Hirdető telefonszáma: +36 70 412 3686
Honlap: -