Budapest, IX.kerület


 

Ingatlan adatai

Irányár: 79 900 000 Ft
Típus: lakás (újépítésű)
Kategória: eladó
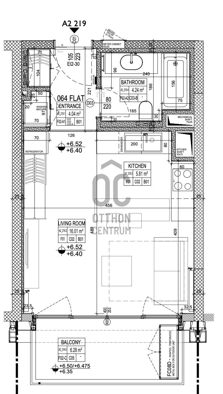
Alapterület: 30 m2
Fűtés: távfűtés
Állapota: új
Szobák száma: 1
Építés éve: 2025
Szintek száma: -
Telekterület: -
Kert mérete: -
Erkély mérete: 6 m2
Felszereltség: -
Parkolás: -
Kilátás: kertre néző
Egyéb extrák:  
-

Részletes leírás

Legyen az Öné ez a stílusos, városi otthon terasszal!Lépjen be a főváros egyik legkülönlegesebb új építésű projektjébe, ahol a múlt öröksége és a modern életstílus tökéletes harmóniában találkozik!Ez a 30 m²-es, természetes fényben úszó lakás, a hozzá tartozó 6,8 m²-es terasszal ideális választás saját otthonnak vagy értékálló befektetésnek.A lakás főbb jellemzői:Hatalmas üvegfelületek, világos terekPrémium burkolatok, teljesen bútorozott fürdőszobaElőkészített klíma és redőnyPraktikus előszobai gardróbBelső kertre néző, intim teraszA környezet:0–24 órás recepcióTöbbszintes mélygarázs, tárolók, kerékpártárolók3 lépcsőház, mindegyikben 2 liftTörténelmi helyszín, modern kényelem:A projekt különlegessége a korhűen felújított víztorony és a karakteres építészeti részletek, melyek minden belépéskor maradandó élményt nyújtanak.Lokáció:MÜPA – 3 perc sétáraBálna, Váci utca, Lánchíd – 15 percen belül elérhető Ideális első lakásként vagy hosszú távú befektetésként is egy dinamikusan fejlődő városrészben.

 Hirdető adatai

Hirdető neve: Otthon Centrum
Kapcsolattartó: Ravasz Katalin
Hirdető telefonszáma: +36 70 469 3516
Honlap: -