Budapest, VII.kerület


 

Ingatlan adatai

Irányár: 149 151 421 Ft
Típus: lakás (újépítésű)
Kategória: eladó
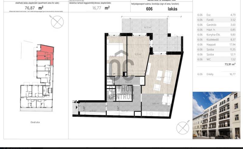
Alapterület: 74 m2
Fűtés: -
Állapota: új
Szobák száma: 3
Építés éve: 2026
Szintek száma: -
Telekterület: -
Kert mérete: -
Erkély mérete: 17 m2
Felszereltség: -
Parkolás: -
Kilátás: kertre néző
Egyéb extrák:  
-

Részletes leírás

Az ingatlan a hatodik emeleten található. Kertre néző.Projekt bemutatásaA belváros egyik legjobb részén a Blaha Lujza tér szomszédságában nappali 1 hálós és nappali + 2 hálós, modern, energiatakarékos lakások.A szomszéd épület alacsony, így a 4. és 5. emeleti belső, kertre néző lakások ablakaiból és teraszáról a kilátást semmi nem gátolja. A 6. emeletről városi panoráma + oldalt a Rózsák terén található templom tornyai láthatók.A 7. emeleti lakásból pazar városi panoráma és részben a budai hegyek látványa tárul elénk.A földszinti lakásokhoz a teraszon kívül saját kert tartozik.Beállók opcionálisan vásárolhatók az épület melletti parkolóházban. A két épület a pinceszinten összenyitásra kerül.Nagy méretű beálló, 5,5x3 méter: 15 millió FtNormál beálló, 2,5x 5 méter: 13 millió FtCsökkentett méretű beálló, 11 millió FtTárolók 600e Ft/m2-es áron, 5 m2-13m2 méretbenMűszaki átadás: 2026.01.31.Szakaszos fizetési ütemezés. 30% -30% - 30% - 10%.A beruházó 25 éve markáns szereplője az ingatlanpiacnak. Magas minőségű kivitelezés, több szakmai díjjal elismert fejlesztő.Fűtés-hűtés rendszerA hűtés fűtést és melegvíz ellátást hőszivattyús rendszer biztosítja.A Fűtés hűtés rendszer csövei a mennyezetben és padlóban futnak.A hűtés és fűtés szabályozása lakásonként a tulajdonos által (akár telefonról is) vezérelhető a lakó helyiségekben elhelyezett termosztáttal történik.A felhasznált hőenergia aránya költségosztással az átfolyt vízmennyiség alapján mérhető.

 Hirdető adatai

Hirdető neve: Otthon Centrum
Kapcsolattartó: Alaitner Gábor
Hirdető telefonszáma: +36 70 461 9291
Honlap: -