Pest megye, Budakeszi


 

Ingatlan adatai

Irányár: 59 990 000 Ft
Típus: kereskedelmi/ipari ingatlan
Kategória: eladó
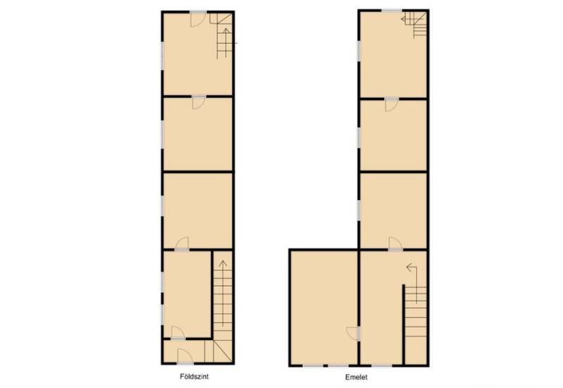
Alapterület: 140 m2
Fűtés: -
Állapota: -
Szobák száma: -
Építés éve: -
Szintek száma: -
Telekterület: -
Kert mérete: -
Erkély mérete: -
Felszereltség: -
Parkolás: -
Kilátás: -
Egyéb extrák:  
-

Részletes leírás

Kivételes lehetőséget kínálunk Önnek, ha üzleti célú ingatlant keres Budakeszi központi részén. Az ingatlan, amely 140 négyzetméternyi területtel rendelkezik, ideális választás lehet kiskereskedelmi tevékenységek számára! A felújítandó állapot lehetőséget biztosít arra, hogy az új tulajdonos saját igényei szerint alakítsa ki a teret, így maximálisan kihasználhatja a benne rejlő potenciált. A bejárat közvetlenül a Fő utcán van és parkolási lehetőség is van az ügyfeleik számára az üzlet előtt. Az ingatlanhoz tartozik egy udvari nyitott beálló is ami c.a 45 m2 és a vétel ár részét képezi. A teljes ingatlan osztatlan közös terület amelyről van hivatalos ügyvédi megosztás. Az ingatlan per és teher mentes. A környék rendkívül vonzó, hiszen Budakeszi központjában található, ahol a közlekedési csomópont közelsége kiemelkedő előnyöket biztosít. Az ingatlan környezetében számos szolgáltatás, bolt és étterem található, amelyek hozzájárulnak a helyi közösség élénk életéhez. Az első épület vályogból épült a hátsó téglából. A kettő összenyitható!A felújítás során Ön saját elképzelései szerint alakíthatja ki az ingatlant, így az maximálisan tükrözheti az Ön üzleti filozófiáját és stílusát. Amennyiben felkeltette érdeklődését ez a kivételes ingatlan, bizalommal keressen minket kérdéseivel kapcsolatban. Személyesen is megtekintené? Hívjon most telefonon és egyeztessünk időpontot a személyes megtekintésre!Hitelezési szakértőnk egyetlen lépésben bemutatja Önnek az összes pénzintézet ajánlatát, akár vállalati hitelt is tudunk szerezni - így elkerülheti a hosszadalmas és felesleges banki látogatásokat – gyorsan, hatékonyan és a legjobb döntést biztosítva Önnek! Kérje hitelszakértőnket bővebb információért!

 Hirdető adatai

Hirdető neve: Otthon Centrum
Kapcsolattartó: Benkő Szilamér
Hirdető telefonszáma: +36 70 469 3651
Honlap: -