Zala megye, Balatongyörök


 

Ingatlan adatai

Irányár: 179 990 000 Ft
Típus: ház
Kategória: eladó
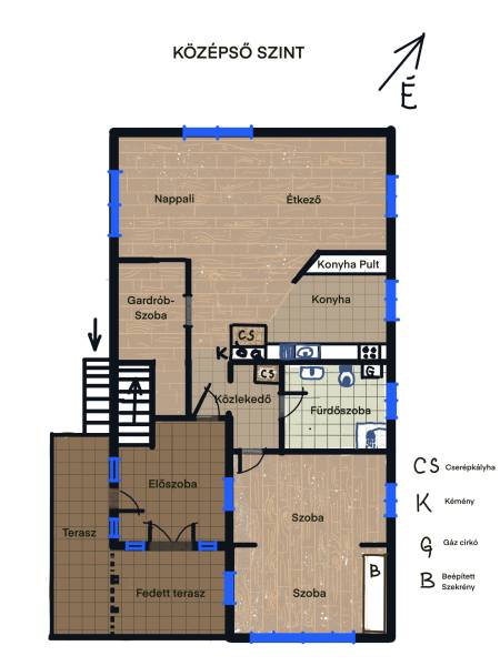
Alapterület: 200 m2
Fűtés: gáz (cirko)
Állapota: -
Szobák száma: 5
Építés éve: 1996
Szintek száma: -
Telekterület: 2 067 m2
Kert mérete: 2 067 m2
Erkély mérete: 20 m2
Felszereltség: -
Parkolás: -
Kilátás: -
Egyéb extrák:  
-

Részletes leírás

Eladásra kínálunk egy különleges panorámás ingatlant Balatongyörök szívében!-A 200 négyzetméteres lakóterület és a 2067 négyzetméteres telek bőséges helyet biztosít, hogy mindenki megtalálja a számításait. -Az ingatlan öt tágas szobával és három fürdőszobával rendelkezik, így ideális nagyobb családok számára is. - Az alsó szinten található egy szauna, amely saját fürdőszobával és hálószobával ellátott. -A nappali világos és barátságos, a beépített bútorok és szekrények pedig nemcsak praktikusak, hanem esztétikai szempontból is emelik az otthon hangulatát. -A 20 négyzetméteres teraszról gyönyörű tóra néző kilátás nyílik, ami egyedülálló élményt nyújt a reggeli kávézásokhoz vagy a családi összejövetelekhez. A ház fűtése gáz cirkó rendszerrel történik, míg a hűtésről klíma gondoskodik, így az év bármely szakában kellemes hőmérsékletet biztosít. A kandalló nemcsak a fűtés hatékonyságát növeli, hanem romantikus hangulatot is teremt a hűvösebb estéken. -A két szint külön almérővel felszerelt, így mind az albérleti, mind a szobáztatási vagy társasházasítási lehetőség is azonnal adott. -Az ingatlanhoz tartozik két garázs férőhely, amely kényelmes parkolást biztosít. Ezen kívül egy jól felszerelt boltíves tégla építésű borospince is ár részét képzi.-A környék ellátottsága kiváló, a közlekedési csomópont közelsége pedig megkönnyíti a mindennapi közlekedést. -A ház körbejárható. Tetőszerkezete, szigetelése (5 cm hungarocell), statikai állapota hibátlan.-A telek bővítési lehetőséget is kínál, így ha szeretné, saját igényei szerint alakíthatja tovább az ingatlant. -Több pontból is látható a balatoni panoráma.-Az ingatlan tehermentes, így azonnal birtokba vehető. -A LED hangulatvilágítás és az integrált szúnyoghálók, illetve redőnyök tovább növelik az otthon kényelmét és funkcionalitását. Ha Ön olyan ingatlant keres, amely nemcsak egy otthon, hanem egy életstílus is, akkor ez a ház tökéletes választás lehet Önnek. Kérjük, ne habozzon, keressen bizalommal, amennyiben további kérdései lennének, vagy szeretné megtekinteni ezt a különleges ingatlant!Az adatok kizárólag a megbízóink által rendelkezésünkre bocsátott információkon alapulnak.Fentiekre tekintettel, az adatok teljességéért, helyességéért és aktualitásáért nem vállalunk felelősséget.Az árváltozás, adatmódosítás és közbeni értékesítés jogát fenntartjuk, mindezekért jogi felelősséget nem áll módunkban vállalni.

 Hirdető adatai

Hirdető neve: Otthon Centrum
Kapcsolattartó: Poldauf Róbert
Hirdető telefonszáma: +36 70 469 3266
Honlap: -