Bács-Kiskun megye, Solt


 

Ingatlan adatai

Irányár: 44 900 000 Ft
Típus: ház
Kategória: eladó
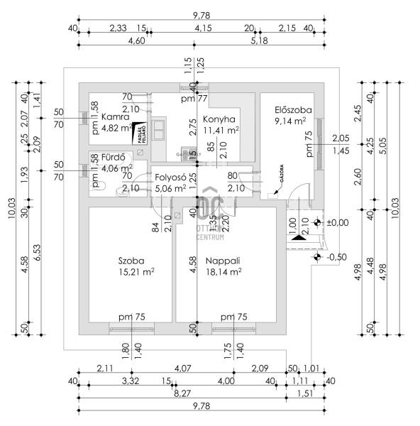
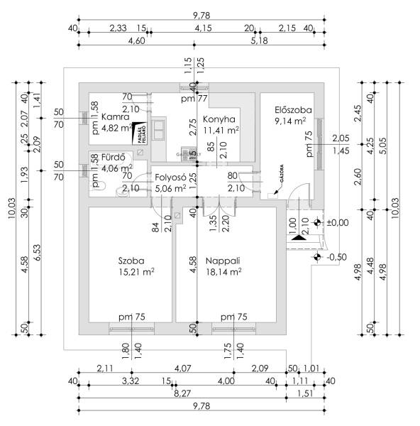
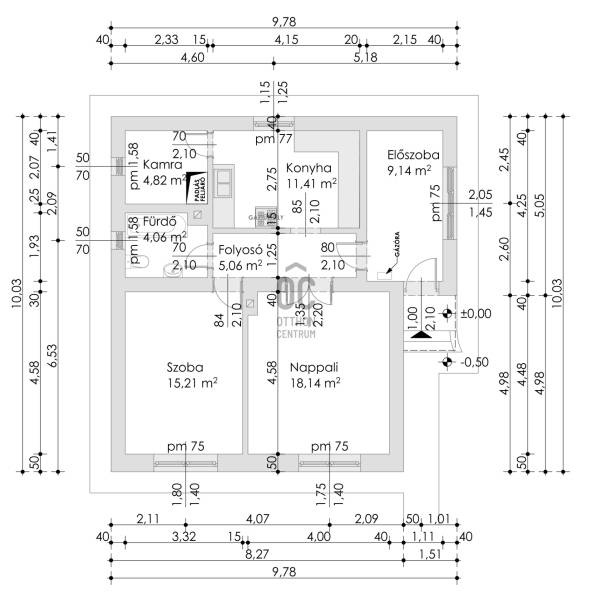
Alapterület: 90 m2
Fűtés: gáz (konvektor)
Állapota: -
Szobák száma: 3
Építés éve: 1980
Szintek száma: -
Telekterület: 1 036 m2
Kert mérete: 1 036 m2
Erkély mérete: -
Felszereltség: -
Parkolás: -
Kilátás: -
Egyéb extrák:  
-

Részletes leírás

Eladó takaros családi ház nagy telekkel, garázzsal – kiváló elrendezés, jó hitellehetőség!Eladásra kínálunk egy 90 m²-es, jól elrendezett családi házat csendes utcában, mégis központi elhelyezkedéssel. A ház két és fél szobával, konyha–étkezővel, kamrával rendelkezik, és kis csinosítással, korszerűsítéssel igazán otthonossá tehető.Főbb jellemzők: - Összes lakótér: 90 m² - 2,5 szoba – tágas és jól bútorozható helyiségek- Az ingatlanba mindenhol műanyag nyílászárók vannak. - Külön konyha–étkező, praktikus kamrával - Garázs és tároló az udvarban - Szép, nagy telek – ideális zöldség-gyümölcs termesztésre, kiváló minőségű földdelElőnyök: - Jó elrendezés – minden helyiség kényelmesen használható - Csendes környezet, de mégis központi helyen - Hitelre is kiváló választás – jó beosztású, jól hasznosítható ingatlanEz a ház tökéletes lehet családoknak, akik szeretnének saját kertet, vagy olyan vásárlóknak, akik egy kis felújítással szeretnék álmaik otthonát kialakítani.Ne maradjon le róla – hívjon most, és tekintse meg személyesen!

 Hirdető adatai

Hirdető neve: Otthon Centrum
Kapcsolattartó: Székiné Scher Judit
Hirdető telefonszáma: +36 70 388 5211
Honlap: -