Somogy megye, Siófok


 

Ingatlan adatai

Irányár: 159 800 000 Ft
Típus: ház
Kategória: eladó
Alapterület: 120 m2
Fűtés: gáz (cirko)
Állapota: -
Szobák száma: 4
Építés éve: 1990
Szintek száma: -
Telekterület: 2 280 m2
Kert mérete: 2 280 m2
Erkély mérete: -
Felszereltség: -
Parkolás: -
Kilátás: -
Egyéb extrák:  
-

Részletes leírás

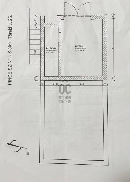
Eladó kényelmes ház Siófok-Töreki városrészében és mellette egy önálló panorámás telek!Képzelje el, hogy egy csendes, nyugodt helyen él, ahol a természet közelsége és a Balaton csodás panorámája vár Önre!Ez a ház tökéletes választás Mindazok számára, akik az aktív pihenést és a nyugalmat keresik! Főbb jellemzők:Telek: Rendezett, gyümölcsfákkal és árnyékot adó fákkal 993 nm-en.A tulajdonos hozzá adja még a közvetlen mellette lévő önélló helyrajzi számmal rendelkező építési telket. 1287 nmAkár külön házat vagy medencét építtethet rá, ahonnan Balatoni panorámában gyönyörködhet.Épület: három szinten., 15 cm szigetelés a házon.Földszint: Tágas étkező konyha, nappali, fürdőszoba, WC, terasz.Emelet: 3 hálószoba, fürdőszoba mellékhelyiséggel.Alagsor: Garázs és kazánház.Felújítás: 2022-ben teljes körű felújítás. Rész panorámás kilátás a Balatonra , teljes panoráma a természetre! Bónusz: A ház melletti építési telekkel , amely szintén Balatoni panorámát kínál! Ideális lehetőséget biztosít bővítéshez! Balaton part 4-5 kilométerre, autóval 10 perc alatt elérhető.A tulajdonos Siófoki lakást, házat beszámít, ha számára megfelelő lehet!!Ne hagyja ki ezt a lehetőséget, nézzük meg együtt! Várom hívását! Váljon Ön is a Balaton körüli élet részévé!Balaton#Töreki,# telek és ház,# telek panorámás,#zöld környezet,#

 Hirdető adatai

Hirdető neve: Otthon Centrum
Kapcsolattartó: Horváthné Virág Tímea
Hirdető telefonszáma: +36 70 469 3981
Honlap: -