Hajdú-Bihar megye, Debrecen


 

Ingatlan adatai

Irányár: 160 000 000 Ft
Típus: ház
Kategória: eladó
Alapterület: 160 m2
Fűtés: gáz (cirko)
Állapota: új
Szobák száma: 4
Építés éve: 2025
Szintek száma: -
Telekterület: 120 m2
Kert mérete: 120 m2
Erkély mérete: 21 m2
Felszereltség: -
Parkolás: -
Kilátás: -
Egyéb extrák:  
-

Részletes leírás

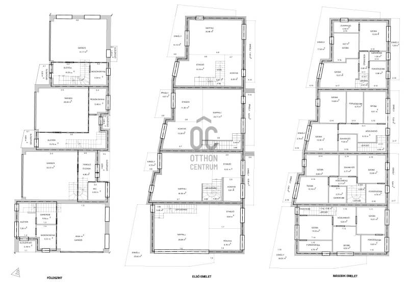
3. lakás Br. 172 nm, 40 nm kertkapcsolattal:Földszint:- duplagarázs (29 nm)- mosókonyha zuhanyzóval (5 nm)- előtér (16 nm)- előlépcső (4 nm)I. Emelet:- amerikaikonyhás nappali étkezővel (50 nm), melyből kialakítható dolgozószoba- erkélykapcsolat (5 + 6 nm)II. Emelet:- 3 hálószoba (10 - 9 - 11 nm)- 2 fürdőszoba (7 - 4 nm)- erkélykapcsolat (4 + 6 nm)Az ingatlanról teljes körű videó felvétel készült, a megtekintése érdekében weboldalunkon keresse a P4625-1-0A-NA-003 regisztrációs számon vagy keressen telefonon közvetlenül.Projekt bemutatásaDebrecen Belvárosához közel, a Széchenyi-kert egyirányú utcájában új építésű, exkluzív otthonok épülnek.A 4 lakásos ikerházból már 1 lakás eladásra került!Ezek az Otthonok duplagarázzsal és gépesített, beépített konyhával kerülnek értékesítésre!Az egyedi kialakítású, napfényes lakások nappali + 3 szobás, 3 fürdőszobás, háromszintesek és kertkapcsolatosak:földszinten: duplagarázs, mosókonyha zuhanyzóval, gardróbbal/tárolóvalI. emeleten: nappali, étkező - konyha, akár dolgozó/háló kialakítással és erkély vagy teraszkapcsolattalII. emeleti részen: szülői hálószoba gardróbbal és saját fürdőszobával, valamint 2 hálószoba külön fürdőszobával és erkély vagy teraszkapcsolattalA magas műszaki tartalmon túl, EXTRA megoldások kerülnek beépítésre:- külső falak Porotherm 30 cm tégla, 15 cm hőszigeteléssel- 3 rétegű műanyag nyílászárók- elektromos redőnyök egyedileg is vezérelhető távirányítással- 5 db hőszivattyús típusú klíma (hűtő-fűtő) - gázkazán melegvíz tárolóval (padlófűtés)- beépített konyhabútor gépesítve (főzőlap,sütő,páraelszívó,hűtő,mosogatógép)- központi porszívó- vízlágyító berendezés- riasztó- épített kerítés- beépített led világításokMinden lakás kertkapcsolatos, melyet kerítés választ el egymástól és a szomszédos telektől.Átadás: 2025. júliusJöjjön és legyen Ön a következő, aki még választhat és akár azonnal költözhet!Hitelügyintézés, CSOK +, banki kollégánk teljeskörűen és díjmentesen bonyolítja Önnek irodánkban, de akár otthonában is!

 Hirdető adatai

Hirdető neve: Otthon Centrum
Kapcsolattartó: Némethné Zsuzsa
Hirdető telefonszáma: +36 70 412 3861
Honlap: -