Budapest, XXI.kerület


 

Ingatlan adatai

Irányár: 179 500 000 Ft
Típus: ház
Kategória: eladó
Alapterület: 160 m2
Fűtés: gáz (cirko)
Állapota: -
Szobák száma: 5
Építés éve: 1968
Szintek száma: -
Telekterület: 539 m2
Kert mérete: 539 m2
Erkély mérete: 18 m2
Felszereltség: -
Parkolás: -
Kilátás: udvari
Egyéb extrák:  
-

Részletes leírás

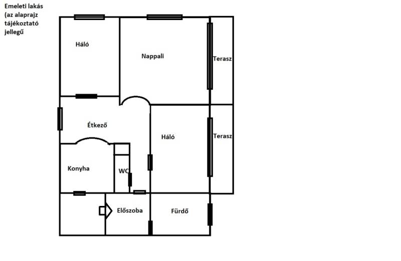
*Különleges lehetőség! 1970-80-as években épült, 3 szintes családi ház eladó!*Egyedi ajánlat: 2 x 95 nm-es, két külön bejáratú lakás egy ingatlanban! - *Alsó szint:*- Fedett teraszról érkezünk az előszobába, 2 szoba, étkező, konyha, spájz, kádas fürdőszoba, külön WC, és tartozik hozzá egy külön bejáratú szoba/tároló- *Felső szint:*- 3 szoba, étkező, konyha, zuhanyzós fürdőszoba, külön WC, előszoba- Műszaki jellemzők:- Téglából épült, műanyag nyílászárók redőnnyel, szúnyoghálóval- Alsó szinten és fent is radiátoros fűtés (kazán és vegyestüzelésű kazán) fenti szinten egy klíma- Melegvíz: villanybojlerKörnyezet:-Az ingatlan közel a Dunaparthoz egy szépen gondozott saroktelken épült két ütemben. A kert locsolása fúrt kútról megoldható.- 30 nm-es garázs az autónak Érdekel? Szeretnél többet megtudni vagy megtekinteni az ingatlant?Keress bizalommal!

 Hirdető adatai

Hirdető neve: GDN Ingatlanhálózat
Kapcsolattartó: Fajta Anita
Hirdető telefonszáma: +36-30-381-4976
Honlap: -