Budapest, XXIII.kerület


 

Ingatlan adatai

Irányár: 119 900 000 Ft
Típus: ház
Kategória: eladó
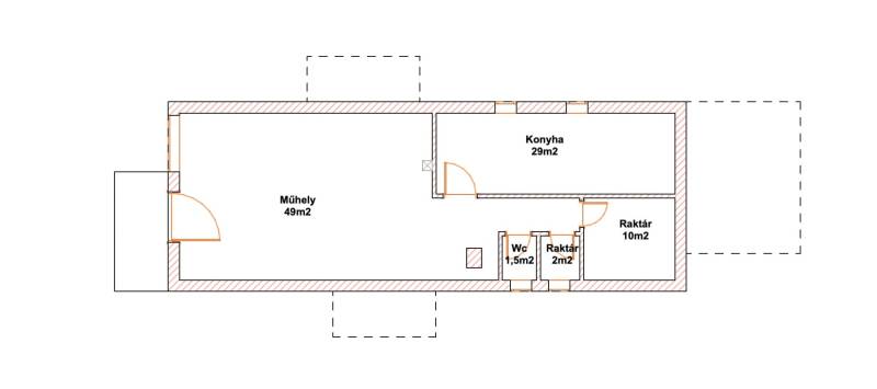
Alapterület: 240 m2
Fűtés: gáz (cirko)
Állapota: -
Szobák száma: 6
Építés éve: 1985
Szintek száma: -
Telekterület: 1 039 m2
Kert mérete: 1 039 m2
Erkély mérete: 12 m2
Felszereltség: -
Parkolás: -
Kilátás: -
Egyéb extrák:  
-

Részletes leírás

Két lakás egy családi házon belül, teljesen külön bejárattal a saját udvarról.Képzelje el, hogy egy csendes, családbarát környéken találja meg álmai otthonát, ahol a tágas terek és a kényelmes életstílus minden napot különlegessé tesz! Budapest 23. kerületében, Soroksár-Újtelepen kínálunk eladásra egy kivételes, használt házat, mely ideális választás családosok számára. Az ingatlan 240 négyzetméteres alapterülettel rendelkezik, és egy 1039 négyzetméteres telken helyezkedik el, ami bőséges teret biztosít a szabadidős tevékenységekhez és a gyerekek játékához. Az ingatlanban összesen 6 szoba található, amelyeket egyedi tervezés jellemez, így minden családtag saját, intim teret élvezhet. A tágas nappali a családi összejövetelek középpontja lehet, míg a három fürdőszoba kényelmet és praktikusságot biztosít a mindennapok során. A 12 négyzetméteres terasz ideális helyszín a reggeli kávézásra vagy a nyári estéken való pihenésre, romantikus hangulatú kertkapcsolattal. A ház egyik része teljes felújításon esett át, a másik rész jó állapotban van, befejezés vár rá. Gáz cirkó fűtéssel rendelkezik, ami gazdaságos és kényelmes fűtési megoldást kínál. Soroksár-Újtelep nem csupán egy csendes és biztonságos lakóhely, hanem remek közlekedési lehetőségekkel is rendelkezik. A környék jól megközelíthető autóval és tömegközlekedéssel egyaránt, így a város többi része könnyen elérhető. A közeli iskolák, óvodák és bevásárlási lehetőségek mind hozzájárulnak ahhoz, hogy a mindennapi élet egyszerűbb és kényelmesebb legyen. Ha Ön is egy olyan ingatlant keres, amely nemcsak otthont, hanem életminőséget is biztosít a családja számára, akkor ez a ház tökéletes választás lehet. Kérjük, ne habozzon kapcsolatba lépni velünk, ha bármilyen kérdése van a hirdetéssel vagy az ingatlannal kapcsolatban. Szívesen állunk rendelkezésére, hogy segíthessünk Önnek megtalálni a legjobb megoldást álmai otthona vagy befektetése kapcsán.

 Hirdető adatai

Hirdető neve: Otthon Centrum
Kapcsolattartó: Krassóy Ágnes
Hirdető telefonszáma: +36 70 469 3921
Honlap: -