Budapest, XI.kerület


 

Ingatlan adatai

Irányár: 131 276 250 Ft
Típus: lakás (újépítésű)
Kategória: eladó
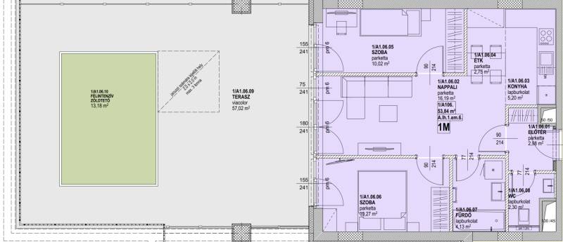
Alapterület: 54 m2
Fűtés: -
Állapota: új
Szobák száma: 3
Építés éve: 2027
Szintek száma: -
Telekterület: -
Kert mérete: -
Erkély mérete: 57 m2
Felszereltség: -
Parkolás: -
Kilátás: kertre néző
Egyéb extrák:  
-

Részletes leírás

Projekt bemutatásaA XI. kerületi Bartók Béla úthoz közel épülő lakópark egy csendes, nyugodt környezetet kínál a város forgatagához közel. Az újbudai városrészben kialakított új lakónegyed kiváló közlekedési kapcsolatokkal rendelkezik. A zsákutcából nyíló elhelyezkedés biztosítja a forgalommentes, zavartalan lakókörnyezeti életet.A lakópark elhelyezkedése ideális azok számára, akik gyorsan és kényelmesen szeretnék elérni a város bármely pontját. A 4-es metró közelsége, az 1-2 perc sétatávolságra elérhető villamosok és a környéken közlekedő nappali és éjszakai autóbuszjáratok kiváló közlekedési lehetőséget biztosítanak. Az M1-es és M7-es autópályák közelsége, vagy a Kelenföld vasútállomás megkönnyíti az ország minden részébe, kiemelten a Balatonhoz és a Velencei tóhoz tervezett utazásokat.A legmodernebb mennyezeti hűtő- fűtő rendszernek köszönhetően alacsony fenntartási költségek várnak. A zöldtetők és az épület körüli zöldterületek nemcsak természetes hőszigetelést adnak, de a közösségi életet is támogatják.A gyönyörű kilátás nyugalma a városi nyüzsgés harmóniájával. A Berry’s minden lakásához tartozik loggia, erkély, vagy terasz!Várható műszaki átadás: 2027 vége

 Hirdető adatai

Hirdető neve: Otthon Centrum
Kapcsolattartó: Bakos Balázs
Hirdető telefonszáma: +36 70 716 9931
Honlap: -