Pest megye, Tápiószele


 

Ingatlan adatai

Irányár: 24 900 000 Ft
Típus: ház
Kategória: eladó
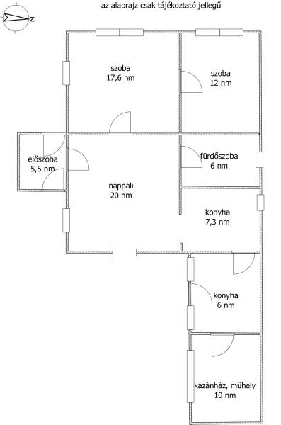
Alapterület: 68 m2
Fűtés: gáz (cirko)
Állapota: -
Szobák száma: 3
Építés éve: 1973
Szintek száma: -
Telekterület: 1 402 m2
Kert mérete: 1 402 m2
Erkély mérete: -
Felszereltség: -
Parkolás: -
Kilátás: -
Egyéb extrák:  
-

Részletes leírás

Eladóvá vált, Tápiószele központjához közel, nettó 68 nm-s, 2 szoba összkomfortos családi ház.Falazata vályog, mely beton alapra épült.Fűtése kondenzációs kazánról, radiátoros hőleadókkal, cserépkályhával, kandallóval megoldott.Klímával is felszerelt.Falazata száraz, jó állapotú, statikailag masszív.Több melléképülettel, garázzsal, műhellyel a nagy telken, mely rendezett, karban tartott.Piaci hitelre alkalmas!Ha felkeltette érdeklődését, ne habozzon!Hívjon mielőbb bizalommal és nézze meg velem mielőbb!

 Hirdető adatai

Hirdető neve: Otthon Centrum
Kapcsolattartó: Kozmané Zsiros Krisztina
Hirdető telefonszáma: +36 70 388 5436
Honlap: -