Pest megye, Ócsa


 

Ingatlan adatai

Irányár: 60 000 000 Ft
Típus: telek
Kategória: eladó
Alapterület: 615 m2
Fűtés: -
Állapota: -
Szobák száma: -
Építés éve: -
Szintek száma: -
Telekterület: 615 m2
Kert mérete: -
Erkély mérete: -
Felszereltség: -
Parkolás: -
Kilátás: -
Egyéb extrák:  
-

Részletes leírás

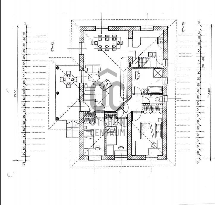
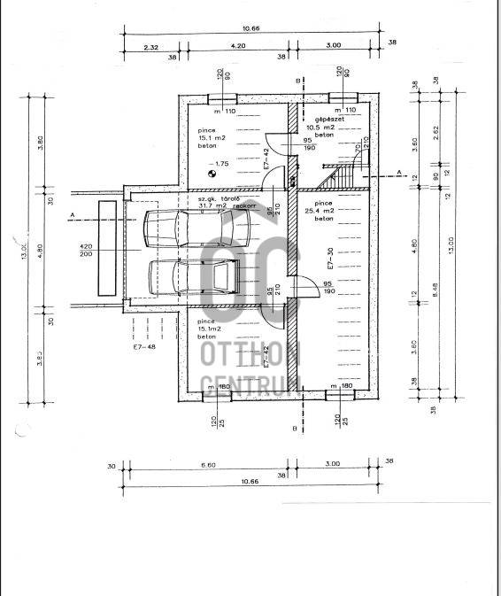
Ócsán 615 nm-es építési telek eladó szerkezetkész házzal.Lf-2/B övezetben helyezkedik el ennek jellemzői- 600 nm a legkisebb terület - 14 m szélesség- beépítés mértéke 30%- megengedett legnagyobb magasság 4,5 m- zöldfelület 40%- 1 épület helyezhető el max 2 lakásA meglévő szerkezetkész ház alapterülete 90 nm alapterületű nappali, 3 szoba, konyha, fürdőszoba+ wc kialakítású, terasszal és ugyanannyi félszuterén rész is.További információkkal és megtekintéssel kapcsolatban kérem hívjanak!

 Hirdető adatai

Hirdető neve: Otthon Centrum
Kapcsolattartó: Papp Klára
Hirdető telefonszáma: +36 70 461 9296
Honlap: -