Pest megye, Szigethalom


 

Ingatlan adatai

Irányár: 69 900 000 Ft
Típus: ház
Kategória: eladó
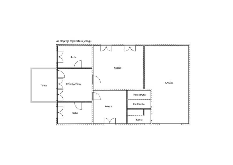
Alapterület: 81 m2
Fűtés: gáz (cirko)
Állapota: -
Szobák száma: 3
Építés éve: 1960
Szintek száma: -
Telekterület: 2 660 m2
Kert mérete: 2 660 m2
Erkély mérete: 8 m2
Felszereltség: -
Parkolás: -
Kilátás: -
Egyéb extrák:  
-

Részletes leírás

Fedezze fel ezt a kivételes lehetőséget, amely a Pest vármegyei Szigethalom csendes, barátságos környezetében várja Önt! \"VADREGÉNYES OTTHON, AHOL AKÁR VÁLLALKOZÁSÁT IS MEGTEREMTHETI\"Az ingatlan, amelyet most bemutatunk, ideális választás lehet üzleti vállalkozások számára, valamint azok számára, akik szeretnék saját otthonukat kialakítani egy nyugodt, de mégis jól megközelíthető helyen. Különlegessége, hogy minden közmű (víz, villany, gáz, csatorna) be lett vezetve. A 81 nm-es ház egy tágas, 2660 nm-es telken helyezkedik el, amely lehetőséget biztosít akár egy jövőbeli vállalkozás kialakítására is. A kertben gyümölcsfák, szőlő ültetvény, és az ott található kis ház alatt borospince található. Az ingatlan három szobával és egy fürdőszobával rendelkezik, így elegendő teret biztosít családok számára, de könnyedén átalakítható irodává vagy más üzleti célra is. A ház átlagos állapotú, fűtéséről gázkazán gondoskodik a téli hónapokban, míg a 8 nm-es terasz ideális helyszín a pihenésre és a szabadban való időtöltésre. A garázsban pedig egy autó kényelmesen elfér, a kertben pedig több autó részére beállási lehetőség, így a parkolás sosem jelenthet problémát. Az ingatlan lakható állapotú, de korszerűsítést igényel.Bővebben az ingatlanról:- többnyire műanyag hőszigetelt nyílászárók- fűtéséről gázkazán gondoskodik radiátorokon keresztül- alternatív fűtésként vegyes tüzelésű kazán radiátoros hőleadással- 8 nm-es fedett terasz- 40 nm-es garázs, benne kis műhellyel- 15 nm-es tároló, boros pincével- a kertben fúrt kút biztosítja az öntözéstAz ingatlan Gksz-1 besorolású (kereskedelmi, szolgáltató), így a családi otthon megteremtése mellett a megélhetését is finanszírozhatja.Szigethalom nemcsak a csendes környékéről ismert, hanem kiváló közlekedési lehetőségeiről is. A település könnyen megközelíthető autóval, hiszen a közeli főutak gyors hozzáférést biztosítanak Budapesthez és a környező településekhez. A tömegközlekedés is jól kiépített, így az ingatlan közelében található buszmegállók, és HÉV révén a város könnyedén elérhető. A környék biztonságos és kellemes, ideális választás családoknak és vállalkozásoknak egyaránt. A település számos szolgáltatást kínál, legyen szó boltokról, éttermekről vagy iskolákról, így minden szükséges kényelem a közelben megtalálható. A természet közelsége lehetőséget biztosít a szabadtéri programokra, sétákra és sportolásra, így az ingatlan nemcsak lakóhelyként, hanem aktív életmódot folytató családok számára is ideális választás. Ez a tehermentes ingatlan számos lehetőséget rejt magában, legyen szó lakó- vagy befektetési céllal történő vásárlásról. Ne habozzon, hiszen az ilyen lehetőségek gyorsan elkelnek! Amennyiben bármilyen kérdése lenne az ingatlannal kapcsolatban, bizalommal kereshet minket, szívesen állunk rendelkezésére, hogy segíthessünk a legjobb döntés meghozatalában.Hívjon a hét bármely napján!

 Hirdető adatai

Hirdető neve: Otthon Centrum
Kapcsolattartó: Török Brigitta
Hirdető telefonszáma: +36 70 388 5521
Honlap: -