Budapest, III.kerület


 

Ingatlan adatai

Irányár: 280 000 000 Ft
Típus: ház
Kategória: eladó
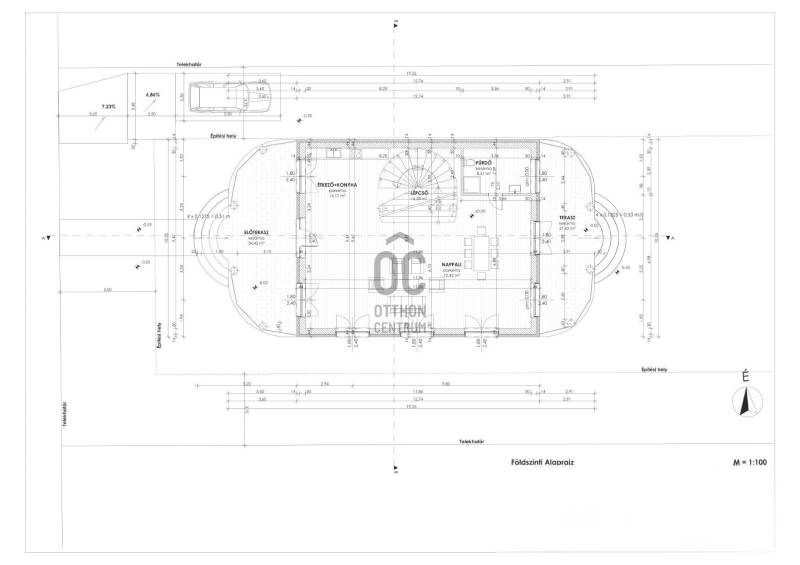
Alapterület: 240 m2
Fűtés: gáz (cirko)
Állapota: -
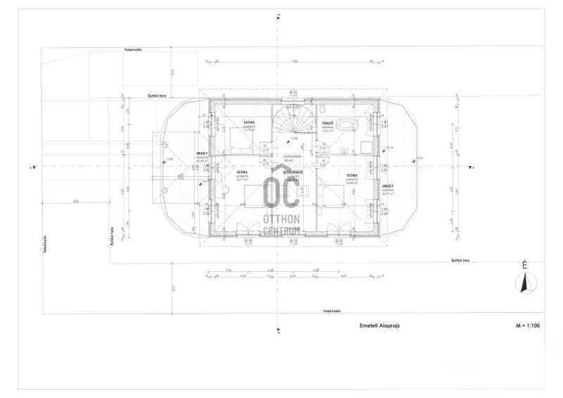
Szobák száma: 5
Építés éve: 2022
Szintek száma: -
Telekterület: 823 m2
Kert mérete: 823 m2
Erkély mérete: 131 m2
Felszereltség: -
Parkolás: -
Kilátás: -
Egyéb extrák:  
-

Részletes leírás

Új tulajdonosát keresi egy nagyszerű adottságokkal rendelkező, luxus igényeket is kielégítő, kétszintes, buttó 300 m2-es családi ház a III. kerületben!Ha nagyon kedvelt és keresett környéken szeretné megtalálni új, modern otthonát, ezt a házat feltétlenül nézze meg!AMIT A HÁZRÓL TUDNI KELL:- A két szintes lakóház 2022-ben épült egy parkosított, 823 m2-es telken.- Falazata Porotherm 30 X-therm tégla, 15 cm-es szigeteléssel. - Hasznos alapterülete 240 m2, a hozzá tartozó teraszok, erkélyek mérete 120 m2, bruttó mérete 300 m2.- Az épület luxus igényeket is kielégít, tulajdonosai extra minőségű anyagokat használtak az építésénél és a berendezéseknél is.- A szimmetrikus elrendezésű épület megjelenésese a modern stílus és a klasszikus elegancia tökéletes ötvözete. - Modern vonalvezetése, letisztult fehér homlokzata és a markáns, sötét színű nyílászárói prémium megjelenést kölcsönöznek. - Az épület a tájolásából adódóan, körbenapozott, szobái tágasak és világosak.- A műanyag ablakok elektromos, alumínium redőnnyel felszereltek.- A 120 m2-es földszint felosztása: hatalmas amerikai konyhás nappali és étkező, fürdőszoba wc-vel.- A hatalmas nappalit és az emeletre vezető impozáns lépcsőt Carrarai márvánnyal burkolták, ami egyedi stílust kölcsönöz a belső térnek.- Földszinti lakótér 120 m2 + összesen 61,84 m2 terasz.- Az emelet felosztása: közös nappali, 3 erkélyes szoba, közlekedő, fürdőszoba wc-vel.- Emelet 120 m2 + összesen 60 m2 terasz.- A fűtést és a meleg vizet kondenzációs kazán biztosítja padlófűtéses hől-eadással, így nincsenek látható fűtőtestek a házban.- A hűtésről minden szobában klíma gondoskodik.- Az ingatlan logikus elosztása és térkihasználása miatt kényelmes életteret biztosít.- A kert szépen gondozott, automata öntözővel, hátsó intim kertjében grillező lett kialakítva.- A térkövezett előkertbe gépkocsival széles kapun keresztül lehet beállni, ahol 6 autó számára van parkolási lehetőség.- A beépített bútorok - gépesített konyha a vételár részét képezik, a többi prémium kategóriájú bútor megegyezés tárgyát képviselik.KÖRNYÉK és KÖZLEKEDÉS:- Budapest III. kerülete, Rómaifürdő közkedvelt családi házas övezete.- A környék kimondottan családias jellegű, biztonságos, rendezett, csendes, tele zöldterületekkel, kutyabarát parkokkal, játszóterekkel. - A közlekedés a területen jó, a háztól 6 perc sétára található a 134-es, 34-es, buszok és a a H5-ős hév megállója.- Budapest egyik legszebb strandja a Római Strandfürdő 2 percnyi séta távolság.- A Római-part / Duna part 900 méter a háztól, ahol számos étterem és kulturális programok széles választéka várja a kikapcsolódni vágyókat.- Aldi, Spar, Lidl és a Csillag Center bevásárló központ pár perc alatt elérhető.- A Kisvirág Bölcsőde 900 méterre, Óvoda 400 méterre, a MOA Magán Általános Iskola 135 méterre található.- Számos neves iskola, óvoda, sportközpont és egészségügyi intézmény található a közelben.AZ INGATLAN MEGTEKINTHETŐ:- Személyesen,- Online, személyes bejelentkezéssel.FINANSZÍROZÁSBAN ONLINE ÜGYINTÉZÉSSEL IS SEGÍTÜNK!- Többszörösen díjnyertes irodánk hitelszakértői 20 éves szakmai tapasztalattal várják, előre egyeztetett időpontban akár normál munkaidőn kívül is.- Bank-független Hitel Centerünk díjmentesen versenyezteti minden bank és hitelintézet kínálatát, hogy önnek a legmegfelelőbb konstrukciót megtaláljuk.- Egyedi igényekre szabott, csak nálunk elérhető egyedi ajánlatokkal, fogyasztóbarát lakáshitelekkel, babaváró hitellel, teljes körű CSOK PLUSZ ügyintézéssel állunk rendelkezésére.Érdeklődés esetén VÁROM HÍVÁSÁT a hét minden napján!

 Hirdető adatai

Hirdető neve: Otthon Centrum
Kapcsolattartó: Csongár István
Hirdető telefonszáma: +36 70 388 6026
Honlap: -