Pest megye, Pécel


 

Ingatlan adatai

Irányár: 95 000 000 Ft
Típus: ház
Kategória: eladó
Alapterület: 100 m2
Fűtés: -
Állapota: új
Szobák száma: 4
Építés éve: 2025
Szintek száma: -
Telekterület: 504 m2
Kert mérete: 504 m2
Erkély mérete: 15 m2
Felszereltség: -
Parkolás: -
Kilátás: kertre néző
Egyéb extrák:  
-

Részletes leírás

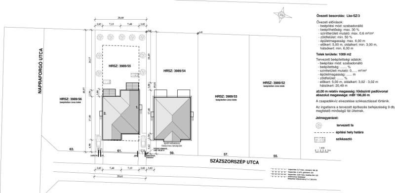
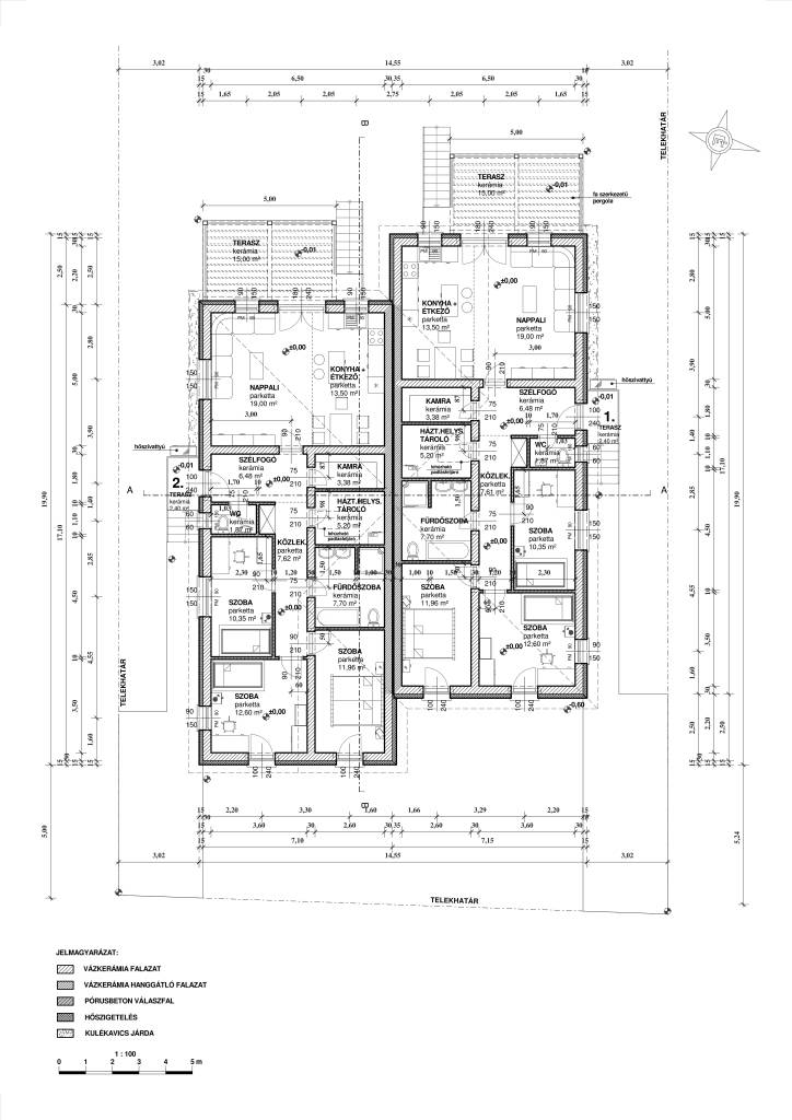
Pécelen a Százszorszép utca 61. szám alatt 1009m2-es telkeken, újonnan épülő nettó 99,66 m2 hasznos lakótérrel rendelkező, kulcsrakész ikerházfelek eladóak!A bal oldali ikerfél elkelt!Az ingatlanok 30-as Nútféderes tégla falazóelemből épülnek, fa födémmel. A tető héjazata antracit síkcserép lesz, a homlokzatok 15cm EPS, a padló 10cm lépésálló, a födém 25cm ásványgyapot szigeteléssel lesz ellátva.A külső nyílászárók 6 légkamrás háromrétegű üveggel szerelt műanyag thermók lesznek.A fűtést monoblockos hőszivattyús rendszer fogja ellátni, padlófűtéssel.A teraszok alatt tároló kerül kialakításra.Klíma előkészítés is készül.Műszaki tartalom:-Csempe, járólap 5000 ft/m²-Meleg burkolat 5000 Ft/m²-Fürdőkád vagy Zuhanyzó: 60.000.- Ft-Beltéri ajtók br. 50.000.- Ft. /db-Csaptelepek: 15.000.- Ft. /dbMagasabb árú választás is lehetséges a különbség finanszírozásával.Elektromos kiépítés:-60db szerelvény /konnektor, kapcsoló, tv, internet/-Kábeltévé: Előkészítés-Kapumozgató elektronika: előkészítés-Riasztó: előkészítésAz utcafronti kerítés színezett zsalukővel, fa lécezéssel készül.Tervezett átadás 2026 második negyedév.Érdeklődő ügyfeleinknek a tervdokumetációt és a műszaki tartalmat készséggel rendelkezésre bocsájtjuk.A kivitelező korábban számos ingatlant épített Isaszegen, Sülysápon, Dányban. Komoly érdeklődés esetén szívesen mutatunk referenciát!INGYENES hitel tanácsadás, CSOK Plusz és Otthon Start ügyintézés!BANKFÜGGETLEN hitelcentrumunk az összes elérhető bank és hitelintézet ajánlatát versenyezteti az Ön kedvéért, ráadásul DÍJMENTESEN.- Egyedi, bankfiókban nem elérhető kamat- és díjkedvezmények- Hitelképesség vizsgálat- Idő, energia és pénz megtakarítás- Teljes hivatali ügyintézésAmennyiben hirdetésem felkeltette az érdeklődését vagy egyéb információra van szüksége hívjon bizalommal!

 Hirdető adatai

Hirdető neve: GDN Ingatlanhálózat
Kapcsolattartó: Horváth Péter
Hirdető telefonszáma: +36-70-606-2990
Honlap: -