Budapest, III.kerület


 

Ingatlan adatai

Irányár: 250 000 000 Ft
Típus: lakás (tégla)
Kategória: eladó
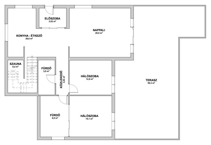
Alapterület: 107 m2
Fűtés: gáz (cirko)
Állapota: -
Szobák száma: 3
Építés éve: 1997
Szintek száma: -
Telekterület: -
Kert mérete: -
Erkély mérete: 58 m2
Felszereltség: -
Parkolás: -
Kilátás: utcai
Egyéb extrák:  
-

Részletes leírás

Vannak lakások, ahol a kulcs nemcsak az ajtót nyitja, hanem egy új nézőpontot is a világra. -Üdv itthon! RÖVID ÖSSZEFOGLALÓEladó a III. kerület egyik hangulatos utcájában, a Haránt közben egy 107 m²-es, teljes szintet elfoglaló lakás, 58 m²-es, lenyűgöző panorámás terasszal. A nappali és két hálószoba mellett igazi különlegessége a jacuzzi kád, a szauna szoláriummal, a beépített csúcskategóriás klímák és a modern biztonsági rendszer. A lakás teljes berendezéssel együtt kerül értékesítésre.LOKÁCIÓA Haránt köz a III. kerület egyik rejtett kincse: olyan utca, ahol a városi élet és a budai hegyek közelsége különleges harmóniát teremt. A mindennapokban itt érezni lehet a kertvárosi nyugalmat, miközben néhány perc alatt elérhetjük a belvárost. A környék családias légkörrel, barátságos szomszédsággal és tágas terek ritmusával fogad.A közelben minden megtalálható, ami a kényelmes hétköznapokhoz kell: bevásárlási lehetőségek, szolgáltatások, éttermek, és mindössze pár perc séta a Duna-part, ahol egy esti futás vagy egy nyugodt séta pillanatok alatt kikapcsol. Ez a kettősség – a nyugalom és a városi lüktetés közelsége – adja meg azt a varázst, ami miatt sokan választják új otthonuknak ezt a környéket.Praktikus infók: • Belváros autóval és tömegközlekedéssel 15–20 perc alatt elérhető • Duna-part néhány perc távolságban, sport- és szabadidős lehetőségekkel • Közelben bevásárlási lehetőségek, éttermek, szolgáltatások • Budai hegyek gyorsan elérhetők kirándulásra, kikapcsolódásraAZ ÉPÜLETA Haránt köz 1/A házának második emelete egy külön világ – a teljes szintet ez a lakás foglalja el, így nem osztozik senkivel sem a térben, sem a hangulatban. A belépőt csendes, rendezett környezet fogadja, amely azonnal megadja az otthonosság érzését. Bár lift nincs az épületben, a lakás belső tere teljesen küszöbmentes, akadálymentesített kialakítása a mindennapi kényelmet szolgálja.Itt minden részlet arra emlékeztet, hogy az otthon nem csupán belül kezdődik, hanem az épület atmoszférájával együtt válik teljessé – egyszerre barátságos és intim, miközben méltó keretet ad a lakás különleges adottságainak.Praktikus információk: • A teljes 2. emeletet a lakás foglalja el • Lift nincs az épületben • Akadálymentesített belső tér (küszöb nélküli kialakítás) • Rendezett társasház, közös képviselet közvetlen szomszéd általA lakáshoz nem tartozik saját garázs, azonban a jelenlegi tulajdonos az egyik szomszéd garázsát bérli, amely igény esetén tovább bérelhető. Megfelelő ajánlat esetén a garázs megvásárlására is lehetőség nyílhat.MAGÁVAL RAGADÓ, EGYEDI OTTHONA hatalmas privát terasz ezen felül a mindennapok praktikus színtere is, megszámlálhatatlan lehetőséggel, melyet csak egy kert adhatna – azonban a kert esetében nem lehetne része az élménynek a lélegzetelállító panoráma, amely itt minden pillanatnak festői hátteret ad.A lakás hangulatát a természetes anyagok és a fények játéka határozza meg. A meleg fa burkolatok, a falakon végigfutó kőtextúrák és a rejtett világítások együtt hozzák létre azt a keleties, bensőséges atmoszférát, ahol minden apró részlet nyugalmat sugároz. Ez a letisztultság és melegség egyszerre teszi különlegessé és élhetővé az otthont.A nappali közvetlen folytatásaként tárul fel az étkező és a konyha, amely egyszerre modern és otthonos. Az üveg- és faelemek, a fényben úszó munkafelületek és a bárpult köré szervezett közösségi tér ideális helyszíne a hétköznapok laza beszélgetéseinek és a baráti összejöveteleknek. Minden egyes részlet – a függesztett designlámpától a falfülkékben sorakozó dekorációkig – arról szól, hogy a tér egyszerre praktikus és meghitt.A hálószobákban folytatódik ez a hangulat: a közvetlen teraszkijáratnak köszönhetően a reggeli fény átszűrődik a hatalmas üvegfelületeken, és a város panorámája már az első pillantásra az új nap része lesz. A falakon futó fa burkolatok melegséget árasztanak, az egyedi beépített megoldások pedig harmóniát és intimitást teremtenek – ezek a terek egyszerre alkalmasak pihenésre, munkára és elvonulásra.A fürdőszoba valódi menedék, ahol a luxus kézzelfogható – nem hivalkodik, csak csendben van jelen. A központi helyen álló, prémium jacuzzi kád minden nap ünneppé teszi a pihenést, míg az esőztetővel és oldalzuhannyal felszerelt zuhanyban minden reggel egy személyre szabott spa-élménnyel indulhat a nap. A szauna és a szolárium kombinációja pedig teljessé teszi ezt a wellness-élményt, hogy a feltöltődés soha ne maradjon el.FUN FACT – MIÉRT IMÁDJUK A PANORÁMÁT?A panorámás kilátás nem csupán látvány, hanem valami ősi, belénk kódolt vágy. Az evolúció során az emberi szem és agy arra „edződött”, hogy messzire lásson – a nyílt terepen való tájékozódás a túlélés alapfeltétele volt. Ahol tágas volt a kilátás, ott nagyobb biztonságban éreztük magunkat: messziről észre lehetett venni a veszélyt, ugyanakkor lehetőség nyílt a táplálékforrások felfedezésére is.Ez a mélyen gyökerező ösztön ma is bennünk él. Nem véletlen, hogy amikor a szemünk akadálytalanul végigfuthat a horizonton, az agy stressz-szintje csökken, a pulzus lelassul, és azonnal nyugalmat érzünk. A kutatások szerint a panoráma szó szerint terápiás hatású: segít oldani a feszültséget, javítja a hangulatot és kreatívabbá tesz.Éppen ezért a panorámás ingatlanok mindig különleges helyet foglalnak el a piacon: ritkaságuk miatt kiemelten keresettek, és hosszú távon is stabilabb értéket képviselnek. Nemcsak egy otthont vásárolunk ilyenkor, hanem egy életérzést – azt a szabadságot és nyugalmat, amit minden nap újra átélhetünk a kilátásnak köszönhetően.MŰSZAKI JELLEMZŐK- Alapterület: 107 m² (nappali + 2 hálószoba)- Terasz: 58 m², két darab 4 méter széles, elektromosan vezérelhető napellenzővel- Fűtés: saját kondenzációs cirkó, padlófűtés; hálószobákban kiegészítő radiátorok; fürdőkben törölközőszárítós radiátorok- Energiahatékonyság: minden nyílászáró háromrétegű hőszigetelt üvegezéssel készült, a lakás kívülről hőszigetelt – ennek köszönhetően a hőszivattyú vagy napelem beépítése sem indokolt. A lakás állandó 26 °C hőmérsékleten is havi 10.000 Ft alatti gázszámlával üzemel, a rezsitámogatott kereten belül maradva.- Hűtés: minden helyiségben beépített, csúcskategóriás Greek U Crown hűtő-fűtő klímák, H-tarifára alkalmas- Wellness: jacuzzi kád (5M Ft feletti érték), szauna szoláriummal kombinálva- Zuhanyzó: Hansgrohe Axor csaptelepek, esőztető és oldalzuhannyal- Biztonság: távfelügyeletre bekötött, 26 érzékelős riasztórendszer- Árnyékolás: minden ablakon és ajtón elektromos redőny- Berendezés: beépített bútorok és gépek, lámpák, televíziók, szőnyegek, Natuzzi bőr sarokgarnitúra (a vételár részei)MEGHÍVÓA fények, a panoráma, a wellness és a modern technológia együtt alkotják azt a harmóniát, amely minden hazatérést különlegessé tesz. Szeretnéd átélni? Egy hívás választ el tőle, hívj és megmutatom Neked ezt a lakást, amihez foghatót még biztosan nem láttál! ----------------------------------------------Díjmentes, bankfüggetlen hiteltanácsadással támogatjuk vevő ügyfeleinket a számukra legelőnyösebb finanszírozási döntések meghozatalában. Opcionálisan igénybe vehető kiegészítő szolgáltatásainkkal – mint ügyvédi közreműködés, energetikai tanúsítvány vagy villamos biztonsági felülvizsgálat – teljes körű szakmai támogatást nyújtunk az adásvétel folyamatának minden egyes lépésénél.----------------------------------------------A hirdetésben szereplő információk tájékoztató jellegűek. A tévedés és az árváltoztatás jogát fenntartjuk. Az esetleges elírásokért és technikai hibákért felelősséget nem vállalunk.

 Hirdető adatai

Hirdető neve: Otthon Centrum
Kapcsolattartó: Török Dávid
Hirdető telefonszáma: +36 70 461 9106
Honlap: -