Heves megye, Gyöngyös


 

Ingatlan adatai

Irányár: 111 000 000 Ft
Típus: ház
Kategória: eladó
Alapterület: 1 200 m2
Fűtés: egyéb
Állapota: felújítást igényel
Szobák száma: 4
Építés éve: -
Szintek száma: -
Telekterület: 15 298 m2
Kert mérete: 15 298 m2
Erkély mérete: 350 m2
Felszereltség: -
Parkolás: -
Kilátás: panorámás
Egyéb extrák:  
-

Részletes leírás

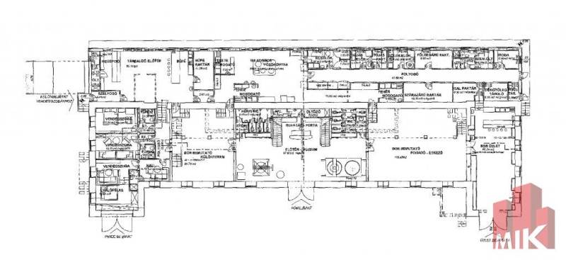
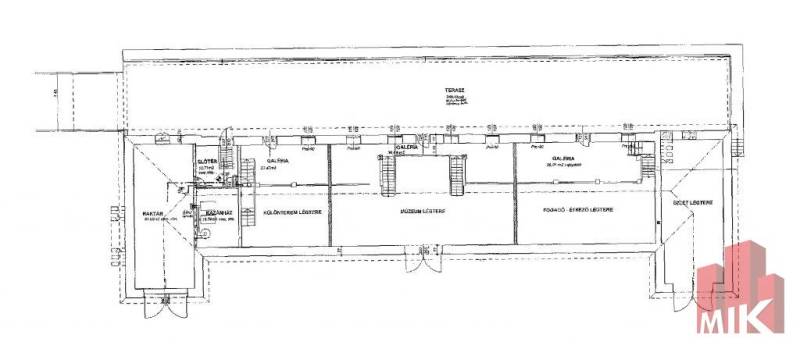
Kastély a szőlőben, grandiózus élettér és rendezvényhelyszín a beltérben!Eladásra kínálunk a Gyöngyös és Abasár között elterülő szőlőtermő terület közepén egy háromszintes, összesen közel 1.200 m2-es, többfunkciós épületet, amely méretéből és adottságaiból adódóan remek lehetőséget kínál egy grandiózus rezidencia, egy nem mindennapi családi fészek kialakítására.A felújítással, az építkezés befejezésével egy egyedi családi kastély építhető fel, ami lehet még egyszerre étterem és borház, rendezvényterem bálteremmel, esküvők, fogadások, exkluzív partik ideális helyszíne!Másfél hektár művelés alól kivett udvar, közepén egy múlt századi, három szintes kúria megkezdett felújítással, újjáépítéssel.Földszint: Előtér és fogadó szint, hatalmas belső tér. Étterem, különterem, szociális helyiségek. Három különálló lakrész, vendégfogadó, recepció, társalgó. Hátul vendéglátó-méretű konyha és kiszolgáló helyiségei, raktárak.Emelet: vendéglátásra alkalmas, elszeparált galériák, raktár, valamint a szint külső folytatásaként egy 350 m2-es terasz.Pinceszint: hatalmas kapacitású bortároló hordók, valamint klasszikus, részben egységekre tagolt, téglafalazatú boltíves pince az épület teljes hosszában. Újabb hatalmas, rendezvényteremmé alakítható tér.A teljes birtok és tanya egy nagyobb turisztikai és idegenforgalmi fejlesztés kiinduló alapja is lehet, amely fekvéséből és méreteiből adódóan kivételes lehetőséget tud biztosítani a térség befektetőinek.Ha egy igazán egyedi, a térség múlt századi hangulatát máig megőrző borházat, bortanyát keres, amit saját tervei alapján varázsolna újjá, alakítaná páratlan, felső kategóriás otthonná, vagy akár kiemelt rendezvények helyszínének, amennyiben keresi a régi épületek sokat sejtető különlegességeit, akkor ez az a birtok, ami mindezeknek megfelel! Jöjjön, nézze meg!Érdeklődése esetén állunk rendelkezésére! Az ingatlan személyes megtekintése előtt bővebb felvilágosítást adunk, további képeket is mutatunk, az ingatlantúrát kérésére megszervezzük.MIK azonosító: 2462889

 Hirdető adatai

Hirdető neve: MIK Magyar Ingatlan Központ
Kapcsolattartó: Bosnyák Zoltán
Hirdető telefonszáma: +36-30-6936328
Honlap: -