Budapest, XIV.kerület


 

Ingatlan adatai

Irányár: 160 000 000 Ft
Típus: lakás (tégla)
Kategória: eladó
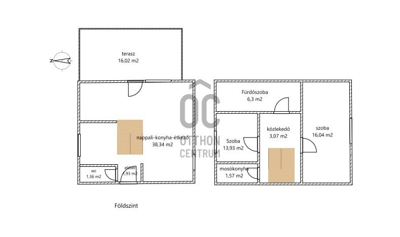
Alapterület: 83 m2
Fűtés: gáz (cirko)
Állapota: -
Szobák száma: 3
Építés éve: 2019
Szintek száma: -
Telekterület: -
Kert mérete: -
Erkély mérete: 16 m2
Felszereltség: -
Parkolás: -
Kilátás: utcai
Egyéb extrák:  
-

Részletes leírás

Otthon, ahol a család minden tagja megtalálja a helyét – Zugló szívében, AlsórákosonKépzeld el, ahogy a gyerekek biztonságban játszanak a saját kertedben, miközben Te egy kávéval a kezedben élvezed a nyugalmat – mindezt Budapest egyik legkedveltebb kertvárosi részén, Zuglóban!Ez a 2019-ben épült, 83 m²-es, belső kétszintes, kertkapcsolatos otthon tökéletes választás családoknak, akik modern kényelmet, csendes környezetet és központi elhelyezkedést keresnek.A lakás elrendezése kifejezetten családbarát: A földszinten világos nappali–konyha–étkező, vendég-WC és közvetlen kijárat a 72 m² saját kertbe – ideális játszótérnek, grillezéshez vagy közös családi estékhez. Az emeleten két kényelmes hálószoba, modern fürdőszoba és külön mosókonyha szolgálja a mindennapok praktikumát.Miért jó választás családoknak? Korszerű burkolatok, energiatakarékos nyílászárók és gépészet = alacsony fenntartási költségek Gáz cirkó fűtés és klíma = kellemes hőmérséklet télen-nyáron Csendes utcák, barátságos szomszédság = biztonságos, harmonikus környezet a gyerekeknekEz a tehermentes ingatlan valódi családi fészek, amely egyszerre nyújt modern kényelmet és meghitt otthonosságot.

 Hirdető adatai

Hirdető neve: Otthon Centrum
Kapcsolattartó: Gáti Annamária
Hirdető telefonszáma: +36 70 469 3636
Honlap: -