Győr-Moson-Sopron megye, Győr


 

Ingatlan adatai

Irányár: 118 000 000 Ft
Típus: ház
Kategória: eladó
Alapterület: 147 m2
Fűtés: gáz (cirko)
Állapota: új
Szobák száma: 5
Építés éve: 2025
Szintek száma: -
Telekterület: 300 m2
Kert mérete: 300 m2
Erkély mérete: 25 m2
Felszereltség: -
Parkolás: -
Kilátás: kertre néző
Egyéb extrák:  
-

Részletes leírás

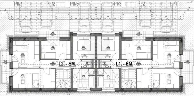
Modern elegancia Győr-Kisbácsán – Új építésű ikerház prémium kivitelben.Nettó alapterület: 147 m2 (113 m2 lakótér + 21 m2 gépkocsi tároló + 25 m2 terasz, erkélyek) + 300 m2 telek + 3 db gépkocsi parkoló.A lakóépület jelenlegi készültségi szintje emelt szintű fűtéskész állapotú, továbbá az ingatlan vételára tartalmazza a 300 m2-es telekrészt, a felépítményt, a kerítést, az épített kukatárolót, 3 db gépkocsi parkolót, szegélyezett tereprendezést, térburkolatokat és járdákat, az önálló közüzemi mérőórákat, valamint a lenti leírásban olvasható műszaki tartalmat.Az ingatlanok kulcsrakész befejezését is vállaljuk a leendő tulajdonos elképzelései és megbízása szerint, rövid határidejű teljesítéssel.A lakóépület ismertetése:A földszinten található: előtér, fürdőszoba (mosdó, zuhanyzó, wc), nappali-étkező-konyha, közlekedő, lépcsőtér és tároló került kialakításra.A nappalihoz kapcsolódik a terasz és a házat körülölelő zárt udvar.Az emeleten található: 4 hálószoba, fürdőszoba (dupla mosdó, zuhanyzó, fürdőkád), külön mellékhelyiség, közlekedő és 2 db erkély került kialakításra.Földszinti helyiséglista:- Előtér 3,42 m2- Fürdőszoba 3,60 m2- Nappali-étkező 25,76 m2- Konyha 6,84 m2- Közlekedő 2,90 m2- Lépcsőtér-tároló 6,30 m2- Garázs 21,30 m2- Terasz 14,10 m2Emelet:- Közlekedő 6,40 m2- Fürdőszoba 8,01 m2- Wc 1,65 m2- Szoba I. 9,30 m2- Szoba II. 10,00 m2- Szoba III. 13,32 m2- Szoba IV. 15,66 m2- Erkély I. 4,30 m2- Erkély II. 7,05 m2Műszaki tartalom, energetikai besorolás, fűtési rendszer, felhasznált építőanyagok, szerkezetek az emelt szintű fűtéskész állapotra vonatkozóan:- kulcsrakész befejezés (leendő tulajdonos elképzelései és megbízása szerint, rövid határidejű teljesítéssel)- energetikai besorolás: A besorolás- inverteres hűtő-fűtő klíma alapszerelés (5 db – 4 db hálószoba + nappali)- lakóegységenként különálló közüzemi mérőórák (1-1 db villanyóra, 1-1 db gázóra, 1-1 db vízóra a használati vízhez + 1-1 db vízóra a kerti locsolóhoz)- lakóegységenként kiépített elektromos hálózat (230V – 32A)- lakóegységenként Vaillant típusú kondenzációs gázkazán, szintenként külön szabályozható termosztátokkal (földszinti + emelet)- helyiségenként külön körökön működő és szabályozható padlófűtés- lefűzött villanyszerelés és kapcsolószekrény- alapozás: vasalt beton sávalap (C25/30-XC2-24-F3)- vasalt aljzat: helyszíni monolit vasbeton szerkezet (C20/25-XC1-24-F3)- födém: helyszíni monolit vasbeton szerkezet (C25/30-XC1-16-F3)- pillérek: helyszíni monolit vasbeton szerkezet (C25/30-XC1-16-F3)- lépcsőszerkezet: helyszíni monolit vasbeton szerkezet (C20/25-XC1-16-F3)- lábazati falak: Leier ZS-30 zsaluelem, vasalva, kibetonozva (C20/25-XC1-24-F3)- főfalak (külső és belső harántfalak): Porotherm 30 N+F tégla- főfalak (lakóegységek között - belső hanggátlás): Leiertherm 30 AKU MD- válaszfalak: Leiertherm 10 N+F, Ytong PVE- lábazati hőszigetelés: 12,0 cm – Ravatherm XPS (0,034 W/mK)- homlokzati hőszigetelés: 15,0 cm – Austrotherm Grafit Reflex (0,031 W/mK)- földszinti padló hőszigetelés: 10,0 cm – Austrotherm AT-N 100 (0,037 W/mK)- emeletközi padló hőszigetelés: 4,0 cm – Austrotherm AT-L2 úsztató réteg (0,044 W/mK)- tető- és padlástéri hőszigetelés: 25,0 cm – Isover Domo Plus Twin 100/50 (0,038 W/mK)- tető- és padlástéri térelhatárolás: Knauf 12,5 mm tűzgátló és impregnált építőlemezek- műanyag típusú homlokzati nyílászárók, tok- és szárnyszerkezetek (80 mm), több ponton záródó bejárati ajtó és ablakok, 3 rétegű hőszigetelt üvegezéssel (44 mm), szín: kívül – antracit, belül – fehér- beépített vakolólapos alumínium redőnyszerkezet, szín: antracit- Velux tetőtéri ablak, 3 rétegű hőszigetelt üvegezéssel, szín: kívül – antracit, belül – fehér- Hörmann RenoMatic hőszigetelt szekcionált garázskapu, motoros meghajtással (hálózatról és távirányítóval egyaránt nyitható-csukható), szín: kívül – antracit, belül – horganyzott- Schöck Isokorb hőhídmegszakító betételem az erkélyek teljes hosszában- Bramac Tectura Protector betoncserép, szín: antracit- színes alumínium korcolt lemezfedés, szín: antracit- Lindab Rain-Line ereszcsatorna és lefolyó, szín: antracit- Baumit rendszerrel készített vékony- és lábazati homlokzati vakolat- Baumit rendszerel készített belső vakolat (simított belső vakolat)- dilatált esztrich aljzatbeton a földszinten és emeleten egyaránt (burkolat nélkül)- tüzihorganyzott acélszerkezetű korlátok- épített kerítés (beton sávalap + Leier ZS-20 zsaluelem, vasalva, kibetonozva + 3D horganyzott „Sendsimir” kerítéstábla)- épített kukatároló és villamosfogadó az utcafronton (beton sávalap + Leier ZS-15 zsaluelem, vasalva, kibetonozva)- udvari járdák és 3-3 db gépkocsi beálló térburkoltak (Leier beton térburkolat)Az épület megvalósítása a legkorszerűbb építőanyagok és szerkezetek felhasználásával, magas minőségben és állandó műszaki felügyelet mellett történt.A környék csendes és biztonságos, ideális hely akár családok számára is, ugyanakkor a közlekedés is kitűnő: a közeli buszmegállók és az autóút könnyű hozzáférést biztosítanak a város többi részéhez, így gyorsan elérheted Győr belvárosát is.A környék ellátottsága kiváló, hiszen boltok, iskolák és egészségügyi intézmények mind könnyen megközelíthetők.Ez az ingatlan nem csupán egy új otthon, hanem egy életstílus is, amely a kényelem és a modern technológia tökéletes ötvözete.Ha szeretnél többet megtudni erről a különleges lehetőségről, vagy kérdéseid lennének, ne habozz keresni!Bizalommal állok rendelkezésedre, hogy segítsek megtalálni a számodra legmegfelelőbb ingatlant.A vásárlás finanszírozásához Otthon start program, CSOK, CSOK+ és kamattámogatott hitel igénybe vehető.Teljes körű ügyintézéssel:- Ügyvéd- Biztosítás- Generálkivitelezés- Ingatlanértékesítés- Teljeskörű ingatlanfelújítás- Bankfüggetlen hiteltanácsadás- CSOK, babaváró, áfa visszaigénylés - állunk rendelkezésére!

 Hirdető adatai

Hirdető neve: B&B Ingatlan powered by RH tanácsadói
Kapcsolattartó: Balogh János
Hirdető telefonszáma: +36 30 651 4841
Honlap: -