Budapest, II.kerület


Trombitás út 

Ingatlan adatai

Irányár: 320 000 Ft/hó
Típus: lakás (tégla)
Kategória: kiadó
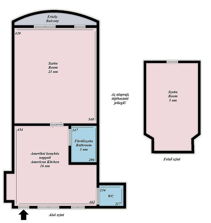
Alapterület: 50 m2
Fűtés: gáz (cirko)
Állapota: felújított
Szobák száma: 2+1
Építés éve: 1909
Szintek száma: -
Telekterület: -
Kert mérete: -
Erkély mérete: -
Felszereltség: -
Parkolás: -
Kilátás: panorámás
Egyéb extrák:  
-

Részletes leírás

Kiadó Panorámás, Felújított 2 Szobás Lakás a Trombitás úton – Kutyabarát Otthon! Kiadásra kínálunk egy különleges hangulatú, belső kétszintes, részben bútorozott lakást a közkedvelt Trombitás úton! A lakás 2023-ban teljes körű felújításon esett át, így modern, mégis otthonos környezet várja új lakóját.Főbb jellemzők:- 2 szobás (alsó szint: nappali, konyha, fürdő, WC – felső szint: hálószoba)- Kis erkély, ahonnan lélegzetelállító panoráma nyílik a városra- Világos, jól tagolt terek, praktikus elrendezés- Részben bútorozott: hűtő, mosógép, mosogatógép, sütő, konyhabútor, kanapéÁllatbarát – kutyával is költözhető!Elhelyezkedés:Nyugodt, zöldövezeti környezet, mégis jó közlekedéssel. A természet közelsége és a városi élet előnyei itt tökéletes harmóniában vannak.Azonnal költözhető 2 havi kaució és 1 havi bérleti díj ellenében.Ne hagyd ki ezt az egyedi lehetőséget – egy ilyen panorámás, stílusos lakás ritkaság a piacon!

 Hirdető adatai

Hirdető neve: MPD Hungary Kft.
Kapcsolattartó: Mille-Case Kft.
Hirdető telefonszáma: +3613361706
Honlap: -