Budapest, V.kerület


 

Ingatlan adatai

Irányár: 105 750 000 Ft
Típus: lakás (tégla)
Kategória: eladó
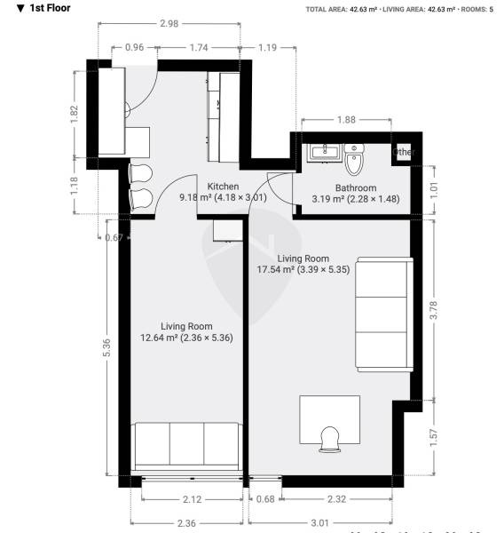
Alapterület: 45 m2
Fűtés: házközponti egyedi méréssel
Állapota: -
Szobák száma: 2
Építés éve: 1940
Szintek száma: -
Telekterület: -
Kert mérete: -
Erkély mérete: -
Felszereltség: -
Parkolás: -
Kilátás: utcai
Egyéb extrák:  
-

Részletes leírás

Elegáns, világos otthon Budapest egyik legkedveltebb városrészében, ahol a belvárosi hangulat és a nyugalom tökéletesen találkozik.A lakás 3. emeleti, délkeleti tájolású, utcára néző, így egész nap világos, mégis csendes környezetet kínál.Tökéletes választás otthonnak vagy irodának is.Főbb jellemzők:- Teljes felújításon esett át: új burkolatok, frissen csiszolt és lakkozott tölgyfa parketta, frissen festett ajtók és falak- Beépített konyha főzőlappal és hűtővel- Modern épített zuhanyzós fürdőszoba- Házközponti fűtés, a víz és fűtés díja a közös költségben (27.000 Ft/hó)- Melegvíz bojlerrel, éjszakai áramról- 2 klímaberendezés (mindkét helyiségben külön egység)- Biztonsági bejárati ajtó, zárt, rendezett lépcsőház, liftA társasház homlokzata felújított, rendezett, igényes lakóközösséggelA környék kivételes adottságú: a Duna-part, a Jászai Mari tér és a Parlament pár percen belül elérhető, mégis nyugodt, elegáns környezetben. Kávézók, éttermek, galériák és közlekedési csomópontok egyaránt karnyújtásnyira.Ez a lakás tökéletes választás mindazoknak, akik klasszikus belvárosi otthont keresnek modern, azonnal költözhető állapotban, vagy értékálló befektetést Lipótváros egyik legjobb részén.

 Hirdető adatai

Hirdető neve: Rock Home
Kapcsolattartó: Baranyai Eszter
Hirdető telefonszáma: +36 70 467 6769
Honlap: -