Somogy megye, Fonyód


 

Ingatlan adatai

Irányár: 495 000 000 Ft
Típus: ház
Kategória: eladó
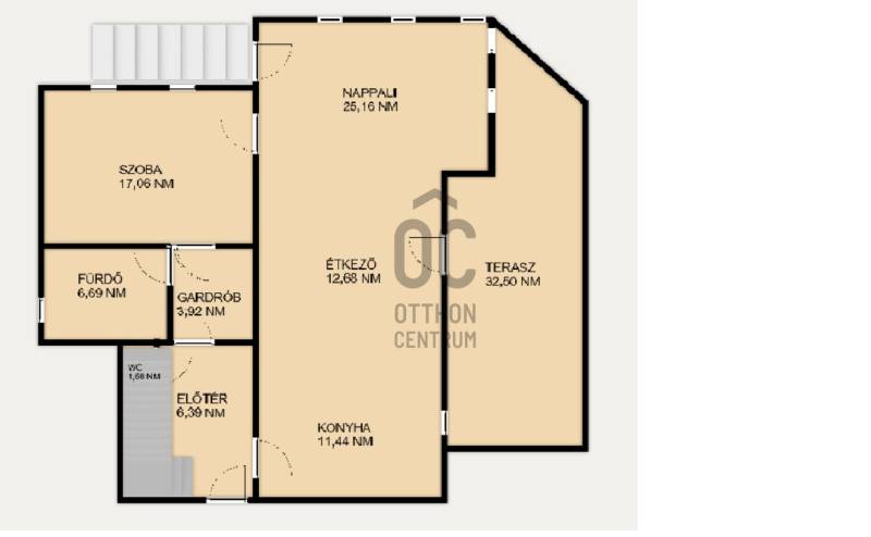
Alapterület: 149 m2
Fűtés: gáz (cirko)
Állapota: -
Szobák száma: 5
Építés éve: 1930
Szintek száma: -
Telekterület: 1 650 m2
Kert mérete: 1 650 m2
Erkély mérete: 33 m2
Felszereltség: -
Parkolás: -
Kilátás: -
Egyéb extrák:  
-

Részletes leírás

Eladó Fonyód egyik legpatinásabb részén, a történelmi Szaplonczai sétány védett ölelésében a különleges hangulatú Chernel villa. Az ingatlan páratlan kilátással rendelkezik a Balatonra és az északi part ikonikus látképére.A villa teraszáról és a házból örök panoráma nyílik a Balaton-felvidék tanúhegyeire, így Badacsony, Gulács és Ábrahám-hegy sziluettje minden nap elvarázsolja a szemlélőt. A közelben található a családbarát Bélatelepi strand, így a nyári balatoni élmények is karnyújtásnyira vannak.Az épület nemcsak fekvésében, hanem megjelenésében is igazi ritkaság: az épület hagyományait megőrizve ötvözték a modern építészeti stílust. A villa presztízst és egyediséget képvisel, tökéletes választás azok számára, akik időtálló értékbe fektetnének.Ez az ingatlan nemcsak otthon, hanem életérzés – a klasszikus balatoni nyarak öröksége és a nyugalom szigete a déli part legszebb részén.Ez a két szintes, különleges hangulatú ház tökéletes választás mindazoknak, akik értékelik a minőséget, az egyedi megoldásokat és a kényelmet. Az ingatlan nappali + 4 szobás kialakítású, három modern fürdőszobával, tágas terasszal és praktikus pincével rendelkezik. A ház minden szeglete átgondolt és korszerű megoldásokat kínál.A nyílászárók egyedi gyártásúak, az ablakokon szellőztető funkció és szúnyogháló is található, a hő- és hangszigetelésről pedig dupla szendvics üvegezés gondoskodik. Az ingatlan teljes mértékben téliesített, így egész évben komfortosan használható.A belső terek kialakításánál a természetes anyagok és a prémium burkolatok dominálnak: a hajópadló lépésálló szigeteléssel készült, megfelelve a mai építési szabványoknak, a nappaliban és az étkezőben pedig stílusos spanyol cementlapok teszik különlegessé az enteriőrt.A tökéletes klímakomfortot az emeleten három különálló klímaberendezés biztosítja, míg a földszinten a nappali és a hálószoba is külön hűtő-fűtő klímával felszerelt.Ez a különleges adottságokkal rendelkező ingatlan számos kulcsfontosságú eleme már elkészült, a végső befejezés azonban a leendő tulajdonosra vár, így maximálisan személyre szabható.A házban Leier típusú kémény került kiépítésre, és a kandalló kiállása is elő van készítve – így a meghitt téli esték hangulata már csak egy döntésre van. Medence és annak teljes gépészetének kialakítása adott.A pincében már csak a burkolatok hiányoznak, a falak és az alapinfrastruktúra készen áll, így minimális munkával egy teljes értékű, hasznos tér alakítható ki.A kert kialakítása még nyitott amely remek alapot biztosít díszkert,pihenőkert vagy akár konyhakert létrehozásához.Az ingatlanhoz tartozik egy különálló 50 négyzetméteres, közműves melléképület is, amelyhez a felújítási tervek rendelkezésre állnak – akár vendégházként hasznosítható és egy külön utcáról is megközelíthető.Ez az ingatlan ideális választás akár nyaralónak, akár állandó otthonnak – a modern technikai megoldásoknak és a gondos kivitelezésnek köszönhetően hosszú távon is értékálló befektetés.Ne hagyja ki ezt a különleges lehetőséget, hogy egy balatoni ékkő birtokosa legyen!

 Hirdető adatai

Hirdető neve: Otthon Centrum
Kapcsolattartó: Czéh Ágnes
Hirdető telefonszáma: +36 70 716 9741
Honlap: -