Budapest, XVII.kerület


 

Ingatlan adatai

Irányár: 94 900 000 Ft
Típus: ház
Kategória: eladó
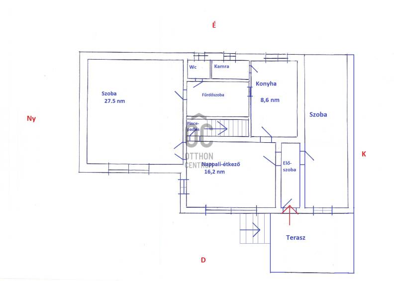
Alapterület: 90 m2
Fűtés: gáz (konvektor)
Állapota: felújítást igényel
Szobák száma: 3
Építés éve: 1936
Szintek száma: -
Telekterület: 721 m2
Kert mérete: 721 m2
Erkély mérete: -
Felszereltség: -
Parkolás: -
Kilátás: -
Egyéb extrák:  
-

Részletes leírás

XVII. kerület kiemelt, egyik legjobb részén, Rákosligeten, ezen belül is a Régiakadémiatelepen kínálunk megvásárlásra egy szép 721 nm-es, kb. 25 méter széles telken álló nagypolgári házat. Ez az ingatlan több szempontból is különleges értéket képvisel: aki szeretné megőrizni ezt a nagypolgári jelleget, annak igazi kincs ez a lakóépület, elegáns, nagyvonalú ingatlant lehet belőle varázsolni egy teljeskörű felújítással. A házban két külön nyíló szoba, egy nappali-étkező, nagy konyha, kamra, fürdőszoba, előszoba, pince kapott helyet, a bejárat egy napos, kertre néző teraszról nyílik. A terasz alatt pince-tároló található. Aki viszont kifejezetten jó környéken keres építési telket, annak is kiváló választás, mivel a kerületben üres telek jó környéken már nincs, a jelenlegi lakóépület lebontásával egy új ház épülhet. A telek szélessége lehetővé teszi egy földszintes lakóépület kialakítását is, a beépíthetősége 25%, a telek összközműves, déli tájolású. A környék kifejezetten csendes, rendezett lakóházakkal beépített. Kiváló ellátottságú terület, tömegközlekedés a Gyöngytyúk, utcán, Ligetsoron, Ferihegyi úton, több buszjárat megállója pár perc sétára, vonat állomás szintén a közelben van. Továbbá iskola (Gregor általános iskola), óvoda, orvosi rendelő, bevásárlási lehetőségek (hentes, pék, SPAR) gyalog is kényelmesen elérhetők.Az ingatlan üres, tehermentes, rövid időn belül birtokba vehető.Ez az ingatlan a \"Felező csomag\" megbízási portfólióhoz tartozik. Részletek az Otthon Centrum weboldalán.

 Hirdető adatai

Hirdető neve: Otthon Centrum
Kapcsolattartó: Sipos Zoltánné
Hirdető telefonszáma: +36 70 469 3031
Honlap: -