Pest megye, Nagykovácsi


 

Ingatlan adatai

Irányár: 189 900 000 Ft
Típus: ház
Kategória: eladó
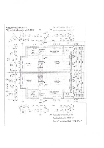
Alapterület: 100 m2
Fűtés: gáz (cirko)
Állapota: -
Szobák száma: 5
Építés éve: 2017
Szintek száma: -
Telekterület: 500 m2
Kert mérete: 500 m2
Erkély mérete: 42 m2
Felszereltség: -
Parkolás: -
Kilátás: -
Egyéb extrák:  
-

Részletes leírás

Eladó újépítésű ikerház – Nagykovácsi egyik legkedveltebb, LEGPATINÁNSABB utcájában ahol minden letisztul.A Budai-hegység lábánál, a természet közelségében, mégis Budapesttől mindössze néhány percre található Nagykovácsi.Ez a település az utóbbi években a fővárosi agglomeráció egyik legkedveltebb, legélhetőbb helyévé vált – ahol a nyugalom, a biztonság és a természet harmóniája ideális környezetet teremt az otthonteremtéshez.Ebbe a környezetbe illeszkedik ez a modern, energiatakarékos újépítésű ikerház, amely magas minőségű anyagokkal, átgondolt műszaki megoldásokkal és gondosan kialakított kerttel kínál valódi értéket és kényelmet új tulajdonosának. Az utca különlegessége, hogy a villanyvezetékek föld alatt futnak, így nem rontják a környék látványát - légvezetékek nincsenek.Telek és külső kialakítás-- Saját telekrész: 500 m²-- Igényes földmunkával parkosított, automata öntözőrendszerrel kialakított különleges növényekkel ellátott kert.-- Leier beton térburkolat a járdákon, beállón és teraszokon-- Automata kapu a gépkocsi-bejárónál-- Dupla fedett ragasztott fából kocsibeálló-- Tágas, burkolt Fedett teraszok és erkélyekÉpület és szerkezet-- Hasznos alapterület: 100 m² (NETTÓ) /125nm (BRUTTÓ). A területszámításben nincs beleszáítva az erkélyek és a teraszok!-- Főfalazat: 30 cm Phorotherm tégla-- Homlokzati hőszigetelés: 10 cm vastag-- Koszorúk és áthidalók: 15 cm hőszigeteléssel ellátva-- Belső válaszfalak: 10 cm Ytong és Phoroterm téglából-- Energiahatékony, hő- és hangszigetelt építési rendszer-- Modern, letisztult homlokzati megjelenésTetőszerkezet-- Fedés: Mediterrán hullámos antracit színű betoncserép-- Tetőszigetelés: 20 cm vastag kőzetgyapot-- Esztétikus eresz- és bádogozási megoldások-- Tetősík alatti hő, bogár és páravédelem biztosított Nyílászárók-- Külső nyílászárók: 3 rétegű hőszigetelt üvegezés (K = 0,7 W/m²K) Külső oldalon dió, belül fehér színben-- Modern szúnyoghálóval ellátott nyílászárókFűtés és gépészet-- Fűtés: Saunier Duval kondenzációs kombi kazán-- Hőleadás: radiátoros rendszer-- Fürdőszobák: radiátor és törölközőszárítós radiátorral ellátottElektromos hálózat:-- 1x32A (bővíthető)-- TV és internet kiállások-- Teljes riasztórendszer-előkészítés-- Kaputelefon rendszer kiépítve-- Automata kapu elektromos működtetéssel-- Külső homlokzati és kerti világításokA ház egyik legnagyobb ékessége a gondosan megtervezett és karbantartott kert, amely a tulajdonos igényes munkáját tükrözi.A házhoz tartozó igényes telek vízszintes és a végén gyönyörű erdősáv húzódik amitől még egyedibb és ritkává teszi az ingatlant.A zöld pázsit, dísznövények és tujasorok harmonikus elrendezésben ölelik körül a házat, minden évszakban rendezett, esztétikus látványt nyújtva.A teljesen automatizált öntözőrendszer precízen adagolja a vizet, így a kert gondozása minimális időráfordítást igényel, mégis mindig friss, élő és ápolt marad.A teraszról nyíló zöldfelület kiváló helyszíne családi reggeliknek, délutáni pihenésnek vagy baráti összejöveteleknek.A kertben található két faház (egy 3×3 m-es tároló és egy Hőszigetelt 4×3 m-es, villannyal és vízzel ellátott prémium kivitelű) funkcionális és esztétikai értéket is ad, tökéletesen illeszkedve a természetes környezethez. Összegzés:Ez a nagykovácsi ikerház nem csupán modern építészeti megoldásaival, hanem a gondosan kialakított, élettel teli kertjével is kiemelkedik a kínálatból.Ideális választás mindazok számára, akik minőségi, energiatakarékos és szerethető otthont keresnek zöldövezeti környezetben, ahol a nyugalom és az igényesség kéz a kézben járnak.400-1200 méteres távolságban: Óvoda, Bölcsőde, Iskola, Szolgáltató üzletek, Amerikai iskola, mind megtalálható.A vételár tartalmazza a beépített bútorokat.

 Hirdető adatai

Hirdető neve: Otthon Centrum
Kapcsolattartó: Németh György
Hirdető telefonszáma: +36 70 388 5191
Honlap: -