Győr-Moson-Sopron megye, Enese


 

Ingatlan adatai

Irányár: 92 000 000 Ft
Típus: ház
Kategória: eladó
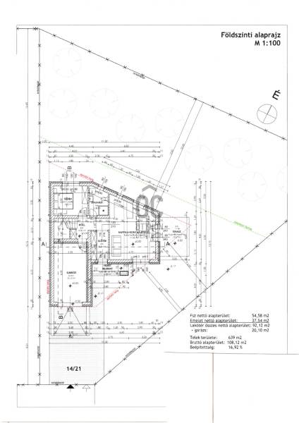
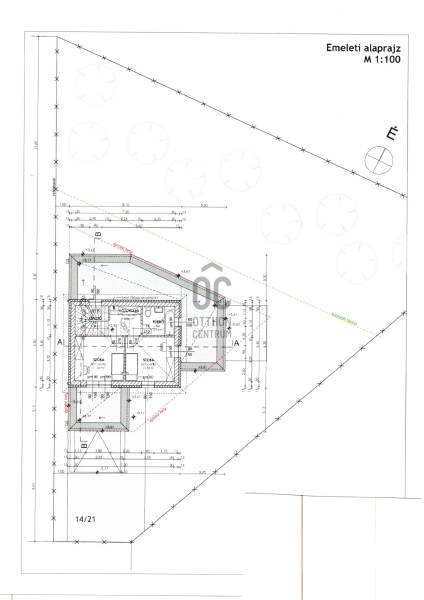
Alapterület: 108 m2
Fűtés: gáz (cirko)
Állapota: új
Szobák száma: 4
Építés éve: 2025
Szintek száma: -
Telekterület: 639 m2
Kert mérete: 639 m2
Erkély mérete: 12 m2
Felszereltség: -
Parkolás: -
Kilátás: -
Egyéb extrák:  
-

Részletes leírás

Költözzön be akár idén karácsonyra!Enesén, Győrtől 17 km-re új építésű, modern önálló családiház várja Önt és családját. Az ingatlan 108,12 négyzetméteres alapterülettel rendelkezik két szinten, amelyet gondosan megterveztek, hogy a kényelmet és a funkcionalitást ötvözze. A házban nappali plusz 3 szoba található és két fürdőszoba, egyik tusolóval a másik káddal. Helyet kapott még háztartási helyiség is az épületben illetve egy GARÁZS!A ház téglából épüt 15 cm szigeteléssel. Fűtéséről gáz cirkó rendszer gondoskodik PADLÓFŰTÉSES HŐLEADÁSSAL. Nyílászárók 3 rétegű műanyagok.ÉS MOST FIGYELJ! Az ár kulcsrakész kivitelezést tartatlmazza sőt a konyhabútort gépekkel is! Illetve a nappaliba egy hűtő-fűtő klímát.Ez az a ház ahová ténylegesen azonnal betudsz költözni a személyes dolgaiddal! Már akár a karácsonyt is ott töltheted, hisz már a belső burkolás van folyamatban!Az telek mérete 639 négyzetméteres a terasz 12,27 nm.A település jól megközelíthető autóval, hiszen a közeli főbb közlekedési útvonalak könnyedén elérhetők (M85). A tömegközlekedés is kedvező, a buszjáratok rendszeresen közlekednek, így a közeli városok, például Győr, gyorsan és egyszerűen elérhetők.Ne habozzon, ez az ingatlan valóban különleges, és biztos vagyok benne, hogy Ön is beleszeret!Összesen 5 db ház eladó, 4 db iker és egy önálló családiház! Kérem érdeklődjön telefonon.Hitelre van szüksége? Tudunk segíteni!Az Otthon Centrum az ország egyik legnagyobb és legmegbízhatóbb hitelközvetítőjeként, teljes körű és díjmentes hitelügyintézéssel, biztosításkötéssel áll rendelkezésére!Kérje személyre szabott ajánlatunkat Kollégáinktól!

 Hirdető adatai

Hirdető neve: Otthon Centrum
Kapcsolattartó: Pingiczer Anett
Hirdető telefonszáma: +36 70 716 8106
Honlap: -