Budapest, XXII.kerület


 

Ingatlan adatai

Irányár: 103 900 000 Ft
Típus: ház
Kategória: eladó
Alapterület: 109 m2
Fűtés: gáz (konvektor)
Állapota: -
Szobák száma: 4
Építés éve: 1936
Szintek száma: -
Telekterület: 468 m2
Kert mérete: 468 m2
Erkély mérete: 8 m2
Felszereltség: -
Parkolás: -
Kilátás: -
Egyéb extrák:  
-

Részletes leírás

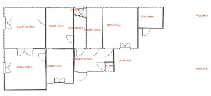
Nagytétényi KINCS! Felújítandó, de utána: álomház!Lokáció: Budapest, Nagytétény – Központi, mégis csendes! ÁR: Kérjen ajánlatot! (Irányár: 103.9 M Ft) Ház: 108,63 m² (4 szoba) | Telek: 468 m² | Épült: 1936! ✨ Különlegesség: SAJÁT, 38 m²-es, boltíves BOROSPINCE! Eladó Nagytétény központi, mégis csendes részén egy 1936-ban épült (többször felújított, folyamatosan karbantartott) 108,63 m²-es, 4 szobás családi ház egy 468 m²-es telken. Ez az ingatlan egy valódi időutazás, ahol a masszív épület, csendes környezet és a központi lokáció találkozik. Bár kisebb javításra szorul, a struktúrája kiválóan alkalmas arra, hogy saját ízlése szerint újragondolja a nagypolgári eleganciát!Miért érdemes AZONNAL hívnia?•Páratlan Különlegessége – a Pince: A telek hátsó részén, egy 8 m²-es tárolóépületből nyílik lejáró az önálló, 38 m²-es, boltíves borospincébe! Ez a helyiség nem csak tárolásra alkalmas, hanem exkluzív borozóvá vagy hobbi/wellness helyiséggé is alakítható! Hívjon, hogy elmondhassam, hogyan hasznosíthatja ezt az egyedülálló teret!•Masszív Szerkezet és Kiemelt Belmagasság: Az épület eredeti, nagypolgári részeiben a belmagasság 3 méter, míg a későbbi bővítmények 2,6 méteresek. A ház masszív, a főtető felújítása már megtörtént! Szeretné tudni, milyen előnyökkel jár a frissen felújított tető, és mi a teendő a belső terekkel? Kérdezzen!•Kiváló Lokáció: Központi elhelyezkedésének köszönhetően minden szolgáltatás, közlekedés könnyen elérhető, mégis csendes és nyugodt a környék.•Finanszírozás: Az ingatlan hitelezhető (Otthon Start, CSOK+ szempontból is érdekes lehet!), és rövid határidővel birtokba vehető.Ne maradjon le erről a ritka nagypolgári lehetőségről, ahol a történelem találkozik a felújítási potenciállal! Ha értékeli a múltat, de a jövőt építené, ez a ház Önre vár!⚠️ NE AZ ÁR TARTSA VISSZA! Az ingatlan irányára 103.9 M Ft, de a tulajdonos minden komoly AJÁNLATOT MEGFONTOL!Tegyen egy ajánlatot még ma! Jöjjön el, nézze meg élőben, és utána mondja meg, mi az a legjobb ár, amiért megvenné! Csak az érdeklődjön, aki bevállalja a felújítási kalandot!HÍVJON MOST, MIELŐTT MÁS CSAP LE A PINCEKINCSEKRE! (Minden kérdésére válaszolok! Hívjon, és elmondom, mi a teendő a belső terekkel!)

 Hirdető adatai

Hirdető neve: Otthon Centrum
Kapcsolattartó: Pátkai László András
Hirdető telefonszáma: +36 70 388 6321
Honlap: -