Budapest, X.kerület


 

Ingatlan adatai

Irányár: 289 000 000 Ft
Típus: ház
Kategória: eladó
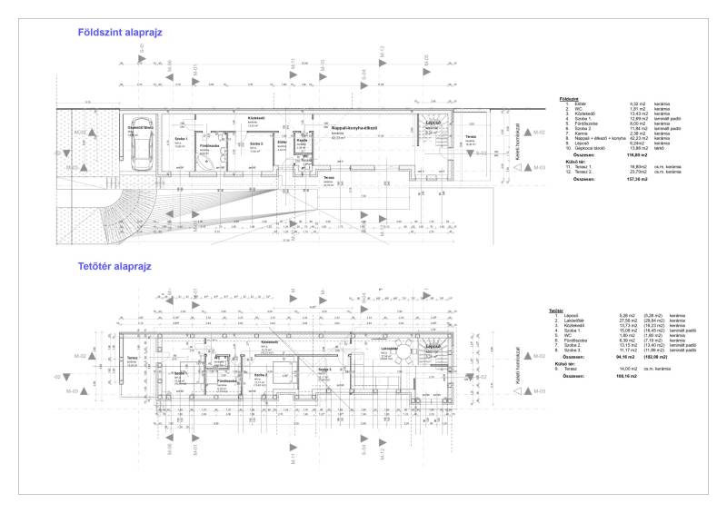
Alapterület: 245 m2
Fűtés: -
Állapota: -
Szobák száma: 7
Építés éve: 2025
Szintek száma: -
Telekterület: 200 m2
Kert mérete: 200 m2
Erkély mérete: 20 m2
Felszereltség: -
Parkolás: -
Kilátás: -
Egyéb extrák:  
-

Részletes leírás

ELADÓ KÉT GENERÁCIÓS LUXUS családi ház a KÜLÖN BEJÁRATTAL a 10. Kerületben – Prémium Minőség, Kényelem és FenntarthatóságEladó egy újépítésű, modern, és igényes kivitelezésű ket generácios családi ház a 10. kerület egyik legkeresettebb utcájában. Ez a prémium ingatlan ideális választás mindazok számára, akik magas szintű komfortot, minőséget és fenntarthatóságot keresnek.Az ingatlan főbb jellemzői:* Tágas és világos élettér: Az amerikai konyhás nappali mindkét szinten 35 m²-es, rengeteg természetes fénnyel, melyet a nagyméretű ablakok biztosítanak. Az optimális tájolásnak köszönhetően a ház egész nap napfényben fürdik.* Kényelmes hálószobák: Három különálló, világos hálószoba felső szinten (12 m², 12 m², 14 m²)alsó szinten( 13nmés 14 nm )ideális a pihenéshez, mindegyik saját stílusával.* Prémium fürdőszoba: Az alsó szinten8 m²-es a felső szinten 15 nm- es fürdőszoba elegáns, modern burkolatokkal és prémium felszereltséggel, amely wellness élményt biztosít minden nap.* Külön WC: A praktikus elrendezés lehetővé teszi, hogy a WC külön helyiségben található, így a mindennapi használat során maximális kényelmet biztosít.* Terasz: A felső 15 m²-es terasz ideális helyszín reggeli kávéhoz, esti borozgatáshoz vagy kültéri étkezéshez, az alsó szinten két terasz található 24nm + 17 nm.Magas szintű műszaki tartalom és kényelmi funkciók:* Elektromos redőnyök: Az otthon teljes kényelmét szolgálja, garantálva a zavartalan pihenést és a megfelelő fényviszonyokat.*Menyezet hűtés-fűtés és padlófűtés: A legmodernebb technológia gondoskodik az optimális hőmérsékletről a téli és nyári hónapokban is.* Elegáns üvegkorlátok: Stílusos és biztonságos megoldás, amely még vonzóbbá teszi az ingatlant.* Kültéri Beltéri LED világítás: Külön figyelmet fordítottak a környezeti fényekre is, amelyek esti hangulatot varázsolnak a terasz környékére.Biztonság és kényelmi megoldások:* Földrengésbiztos ház: A legmodernebb építési technológiák alkalmazásával biztosítva van a ház és lakóinak védelme.* Közös kert: A társasház egy hatalmas közös kerttel rendelkezik, amely az ott élők számára pihenést, kikapcsolódást kínál.Kiváló elhelyezkedés:A lakás a 10. kerület csendes, zöldövezeti részén található, mégis közel van minden szükséges szolgáltatáshoz: iskolák, bevásárlóközpontok, orvosi rendelők mind elérhetők pár percen belül. A rendkívül igényes és közkedvelt Óhegy park 200 méterre található, valamint pár száz méterre talalható a Köki terminál ami tömegközlekedéssel, illetve ,gyalogosan és autóval egyaránt könnyen megközelíthető.Miért érdemes ezt a lakást választani?* Magas szintű minőség és modern technológiák* Kiváló közlekedés és környezeti adottságok* extra megoldások, mint az elektromos autó töltőállomás .* Csendes, zöldövezeti környezet és közös kert a pihenéshezNe hagyja ki ezt a páratlan lehetőséget! Egy ilyen prémium ingatlan ritkán kerül piacra, és most Ön előtt áll a lehetőség, hogy a város egyik legvonzóbb helyén éljen. Tökéletes választás a modern, kényelmes és biztonságos életstílust keresők számára!Amennyiben többet szeretne megtudni, vagy személyesen megtekintené ezt a lenyűgöző lakást, keressen minket bizalommal!

 Hirdető adatai

Hirdető neve: Otthon Centrum
Kapcsolattartó: Hideg Róbert
Hirdető telefonszáma: +36 70 469 3736
Honlap: -