Budapest, I.kerület


 

Ingatlan adatai

Irányár: 199 990 000 Ft
Típus: lakás (tégla)
Kategória: eladó
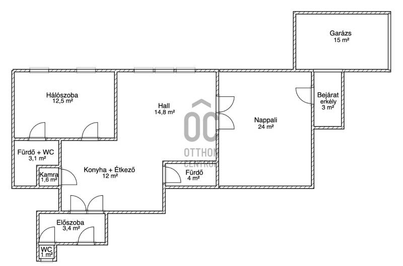
Alapterület: 95 m2
Fűtés: gáz (cirko)
Állapota: -
Szobák száma: 3
Építés éve: 1918
Szintek száma: -
Telekterület: -
Kert mérete: -
Erkély mérete: 5 m2
Felszereltség: -
Parkolás: -
Kilátás: udvari
Egyéb extrák:  
-

Részletes leírás

Kuriózum lakás a Budai Vár tövébenSaját garázzsal, privát bejárattal, panorámával és elképesztő hangulattal!Ez nem csak egy lakás – ez egy életstílus.A Budai Vár alatt, az August-udvar exkluzív épületében kínáljuk ezt a 95 m²-es gyöngyszemet, ami egyszerre városi és meghitt, modern és történelmi, stílusos és praktikus.Összesen 95 m²– Lakás: 77 m²– Saját garázs: 15 m² + 20 M Ft – Erkély: 3 m²– Saját pince-tároló: 6 m² Mi teszi igazán különlegessé:Privát bejárat közvetlenül a garázsból – szomszédok nélkül, teljes intimitásban.3 méteres belmagasság, tágas terek, három szoba, dupla fürdőszoba (az egyik közvetlenül a hálóból).Erkély a Várra és a Várkertre néző panorámával.Világos, mégis kellemesen hűvös nyáron, meleg télen.Teljes körű felújítás 2020-ba– új vezetékek, tölgyfa parketta, hő- és hangszigetelt nyílászárók, modern fűtésrendszer.Belépések két irányból:1. A társasház főbejáratán keresztül, lifttel, az Attila útról.2. Közvetlenül a saját garázsból, ahonnan egyenesen a nappaliba léphetsz Felszereltség:Az ingatlan ízlésesen, teljesen berendezve eladó.A bútorok és berendezések kérésre az ár részét képezhetik.Azonnal költözhető vagy kiadható – eddig 1400 €/hó + rezsi áron bérbe adták. Környezet:Csendes, zöld, mégis a város szívében.2 perc séta a Ybl Miklós tér és a Várkert Bazár, miközben a környék a Budai Vár felújítási programjával folyamatosan értékelődik.A házban kisbolt, étterem és közösségi kávézó is található – minden kéznél. Parkolás:Saját, 15 m²-es garázs + 20 000 000FtA garázs előtti részen további autó is parkolhatKinek ajánljuk:Diplomatáknak, felsővezetőknek, pároknak, vagy bárkinek, aki a privát luxust, a történelmi környezetet és a letisztult eleganciát** keresi – akár saját otthonnak, akár befektetésnek.Ez az a lakás, ahol a Vár alatti történelem találkozik a mai élet kényelmével.Budai hangulat, pesti ritkaság – egyetlen kulccsal.

 Hirdető adatai

Hirdető neve: Otthon Centrum
Kapcsolattartó: Pongrácz Rita
Hirdető telefonszáma: +36 70 388 6131
Honlap: -