Budapest, VIII.kerület


 

Ingatlan adatai

Irányár: 119 275 600 Ft
Típus: lakás (tégla)
Kategória: eladó
Alapterület: 111 m2
Fűtés: gáz (cirko)
Állapota: -
Szobák száma: 3+1
Építés éve: -
Szintek száma: -
Telekterület: -
Kert mérete: -
Erkély mérete: -
Felszereltség: -
Parkolás: -
Kilátás: utcai
Egyéb extrák:  
-

Részletes leírás

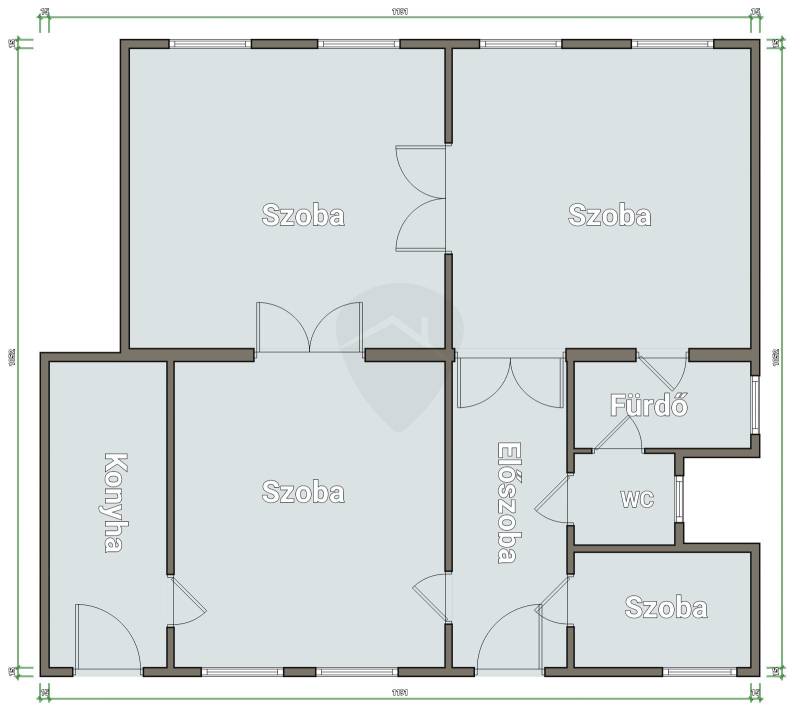
Kedves Érdeklődő!Eladásra kínálunk a Palotanegyedben, a Kálvin tér szomszédságában egy 1875-ben épült, historizáló-eklektikus stílusú épületben lévő 1. emeleti lakást. A ház homlokzata és a lépcsőháza is felújított. Az utcától nézve az épület hátsó oldalán fekszik az ingatlan, így nagyon csendes. A két nagy szobából a környező épületek hátsó részére látni, udvari tájolásúnak nem lehet mondani.Az ingatlan 111 nm-es, nagyméretű szobái vannak (28,26,24 nm). Állapota jónak mondható, gáz-cirkó fűtéssel rendelkezik. Két nagy szobájában még az eredeti fa tüzelésú cserépkályha megmaradt, igazán díszes darab mindkettő. Ablakai nagy méretűek, fel lettek újítva. A lakást nem túl nagy ráfordítással, akár két külön részre is lehet bontani, mivel két bejárata van. Lásd az alaprajzon. Egy kb 34 nm-es garzon és egy 77-nm napali+2 hálós egység alakulna így ki.Lokáció remek, szinte a ház előtt áll meg a repülőtérre vezető busz. Pár perc a Kálvin tér. Közelben több egyetem, a SOTE, az ELTE, a Corvinus vagy a BME is pár perc alatt elérhető. Kávézók, pékségek, éttermek, bevásárlási és szórakozási lehetőségek is a közelben vannak.Irányár: 310.000 euróTovábbi információkért keressen bizalommal.

 Hirdető adatai

Hirdető neve: Rock Home
Kapcsolattartó: Maczó Gergely
Hirdető telefonszáma: +36 70 412 5688
Honlap: -